8 000 000 Р 104 900 $ или 87 620

Информация о коттедже

116 м2
Площадь
1
Этажность
6 cоток
Участок

Дополнительная информация

Дом продаётся вместе с участком
есть
Развернуть
Агент
+7 (910) 841-27-17
Начать чат с агентом

Дом в Тверская область, Калининский муниципальный округ, д. Новенькое ...

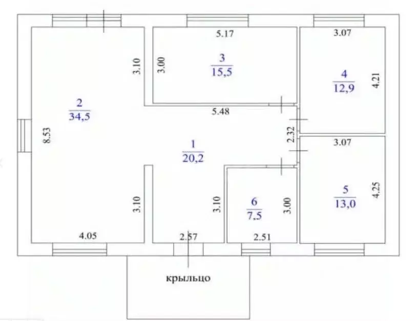
Продается новый, одноэтажный дом на участке 6 соток в д. Новенькое на берегу реки ТверцаСЕМЕЙНАЯ ИПОТЕКА РАССРОЧКА Общая площадь дома 116,8 кв. метраДом 2024 года постройки. Дом достроен Все соответствует фотографиям Фундамент монолитная плитаМатериал стен - газосиликатные блоки, утеплитель, облицовочный кирпичКрыша металлочерепица + утеплитель 200 ммВ дом заведены все коммуникации (свет, газ, вода-скважина, канализация-биостанция) Сделана отмостка вокруг дома. Участоковной, правильной формы, вокруг обнесен забором с откатными воротами. В доме выровнены и отштукатурены стены, что упрощает работы по ремонту. Установлена входная дверь с терморазрывом.Практичная, удобная, просторная планировка с высокими потолками и панорамным остеклением:- прихожая/холл 20,2 кв. метра- комната 15,5 кв. метра- комната 12,9 кв. метра- комната 13 кв. метра - кухня-гостинная 35,4 кв. метра- с/у 7,5 кв. метраПрекрасное, уютное, тихое место, до реки Тверца 500 метров. Ходит общественный транспорт, остановка в шаговой доступности, в деревне есть магазин. Код пользователя: 49454Номер в базе: 7678333

Читать полностью

    Для того, чтобы купить 1-этажный коттедж по адресу: Новый переулок, 9, позвоните по телефону +7 (910) 841-27-17. Торопитесь! Объявление №50016219910 о продаже одноэтажного коттеджа опубликовано 2 дня назад.

    Позвонить Написать
    8 000 000 Р104 900 $ или 87 620
    Агент
    +7 (910) 841-27-17
    Начать чат с агентом
    Похожие предложения
    Дом в Тверская область, Калининский муниципальный округ, д. Фенино  ... - Фото 1
    Дом в Тверская область, Калининский муниципальный округ, д. Фенино  ... - Фото 2
    3 этажа, общая площадь 220м², участок 30 соток

    Устали от городской суеты, тогда этот вариант для Вас Всего в 40 минутах езды от г.Твери, в одном из самых живописных, экологически чистых, тихих мест, на берегу р.Тверца в д. Фенино предлагаем к покупке просторный трехэтажный дом для круглогодичного...
    • 3 эт.
    • 220 м²
    • 30 сот.
    7 990 000 Р
    Агент
    +7 (919) Показать номер
    Посмотреть контакты
    Дом в Тверская область, Калининский муниципальный округ, д. Новенькое ... - Фото 1
    Дом в Тверская область, Калининский муниципальный округ, д. Новенькое ... - Фото 2
    2 этажа, общая площадь 132м², участок 6 соток

    Продается двухэтажный дом общей площадью 132,3 м2. 2022 года постройки. Первый этаж: Веранда - 15,4 м2.Прихожая - 5,6 м2.Комната - 8,5 м2.Котельная - 7,3 м2. Кухня - Гостиная - 41 м2.Терраса - 17,5 м2. Второй этаж:Комнаты - 13,2 м2. 15,7 м2. 12 м2.Ванная...
    • 2 эт.
    • 132 м²
    • 6 сот.
    8 000 000 Р
    Агент
    +7 (910) Показать номер
    Посмотреть контакты
    Дом в Тверская область, Калининский муниципальный округ, Коттеджный ... - Фото 1
    Дом в Тверская область, Калининский муниципальный округ, Коттеджный ... - Фото 2
    1 этаж, общая площадь 115м², участок 8 соток

    В продаже одноэтажный жилой дом 2025 года постройки расположен в деревне Олбово на участке 8 соток Дом достроен, все соответствует фотографиям Общая площадь дома — 115 м, выполнена полная внутренняя и внешняя отделка, территория огорожена забором. Дом...
    • 1 эт.
    • 115 м²
    • 8 сот.
    8 000 000 Р
    Агент
    +7 (910) Показать номер
    Посмотреть контакты
    Дом в Тверская область, Калининский муниципальный округ, Чуприяновка ... - Фото 1
    Дом в Тверская область, Калининский муниципальный округ, Чуприяновка ... - Фото 2
    1 этаж, общая площадь 163м², участок 18 соток

    Арт.Продаётся уютный загородный дом 163 кв. м. на участке 18 соток ИЖС, расположенный в одном из живописных и спокойных мест Тверской области.Дом очень тёплый и светлый, жилой 1-й этаж с мансардой: 4 комнаты, раздельный санузел, прихожая, кухня. На цокольном...
    • 1 эт.
    • 163 м²
    • 18 сот.
    8 000 000 Р
    Агент
    +7 (939) Показать номер
    Посмотреть контакты
    Дом в Тверская область, Калининский муниципальный округ, деревня ... - Фото 1
    Дом в Тверская область, Калининский муниципальный округ, деревня ... - Фото 2
    1 этаж, общая площадь 109м², участок 6 соток

    Продается новый, одноэтажный дом на участке 6 соток в д. Новенькое на берегу реки ТверцаОбщая площадь дома – 109,4 кв. метраДом 2023 года постройки. Дом достроен Все соответствует фотографиям Фундамент – монолитная плитаМатериал стен - газосиликатные...
    • 1 эт.
    • 109 м²
    • 6 сот.
    8 000 000 Р
    Агент
    +7 (915) Показать номер
    Посмотреть контакты

    Не нашли подходящего объявления?

    Оставьте заявку, и наши риэлторы подберут купить дом в районе Калининского района

    (0)