8 000 000 Р 105 600 $ или 88 430

Информация о коттедже

132 м2
Площадь
2
Этажность
6 cоток
Участок

Дополнительная информация

Дом продаётся вместе с участком
есть
Развернуть
Агент
+7 (910) 640-17-26
Начать чат с агентом

Дом в Тверская область, Калининский муниципальный округ, д. Новенькое ...

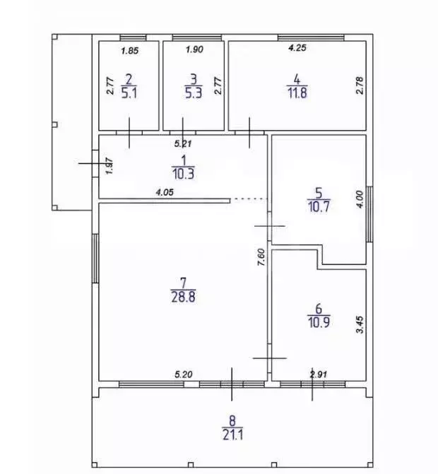
Продается двухэтажный дом общей площадью 132,3 м2. 2022 года постройки. Первый этаж: Веранда - 15,4 м2.Прихожая - 5,6 м2.Комната - 8,5 м2.Котельная - 7,3 м2. Кухня - Гостиная - 41 м2.Терраса - 17,5 м2. Второй этаж:Комнаты - 13,2 м2. 15,7 м2. 12 м2.Ванная 7,3 м2. Коридор 7,4 м2.Балкон - 17,4 м2. Конструктив дома:Фундамент - монолитная ЖБИ плита, отмостка.Стены - газобетон пр-во. Могилев, 400 мм. + декоративная штукатурка Короед Перекрытия 2-го этажа ЖБИ плита.Кровля - гибкая черепица Технониколь, утеплитель 200 м., водосточная система.Лестница - каркас ЖБИ. Окна ПВХ (Rehau) 2-ой. стеклопакет, ламинированные.Входная металлическая дверь с терморазрывом. Коммуникации:Газ - заведен в дом, газовый котел Baxi.Канализация - септик (2 колодца, 3/2 кольца.)Вода - вывод под скважину. Электричество: кабель заведен Участок ИЖС, правильной формы, высокий сухой.Огорожен забором, откатные ворота. 150 м. до берега р. Тверца. 300 м. - Остановка общественного транспорта: СНТ Околица . Автобусы: 103, 104, 107, 111. 150 м - ТЦ Новенький - Супермаркет магазин продуктов, хозтовары. Пункт выдачи ОЗОН, Яндекс Маркет, Wildberries. 7 км. от Твери 12 км. выезд на скоростную магистраль (М-11, 177-й километр). 1,5 ч. от МКАД Один собственник, документы готовы, без обременений.Возможен вариант обмена на квартиру в Твери. Код пользователя: 149023Номер в базе: 7789813

Читать полностью

    Для того, чтобы купить 2-этажный коттедж по адресу: Сиреневый переулок, позвоните по телефону +7 (910) 640-17-26. Торопитесь! Объявление №50015933628 о продаже двухэтажного коттеджа опубликовано 27 января 2026.

    Позвонить Написать
    8 000 000 Р105 600 $ или 88 430
    Агент
    +7 (910) 640-17-26
    Начать чат с агентом
    Похожие предложения в Калининском районе
    Дом в Тверская область, Калининский муниципальный округ, Чуприяновка ... - Фото 1
    Дом в Тверская область, Калининский муниципальный округ, Чуприяновка ... - Фото 2
    1 этаж, общая площадь 163м², участок 18 соток

    Арт.Продаётся уютный загородный дом 163 кв. м. на участке 18 соток ИЖС, расположенный в одном из живописных и спокойных мест Тверской области.Дом очень тёплый и светлый, жилой 1-й этаж с мансардой: 4 комнаты, раздельный санузел, прихожая, кухня. На цокольном...
    • 1 эт.
    • 163 м²
    • 18 сот.
    8 000 000 Р
    Агент
    +7 (939) Показать номер
    Посмотреть контакты
    Дом в Тверская область, Калининский муниципальный округ, коттеджный ... - Фото 1
    Дом в Тверская область, Калининский муниципальный округ, коттеджный ... - Фото 2
    1 этаж, общая площадь 100м², участок 10 соток

    В продаже одноэтажный жилой дом 2025 года постройки расположен в деревне Олбово на участке 8,77 соток. Общая площадь дома — 115 м, выполнена полная внутренняя и внешняя отделка, территория огорожена забором. Дом построен с применением современных материалов:...
    • 1 эт.
    • 100 м²
    • 10 сот.
    8 000 000 Р
    Агент
    +7 (915) Показать номер
    Посмотреть контакты
    Дом в Тверская область, Калининский муниципальный округ, д. Новенькое ... - Фото 1
    Дом в Тверская область, Калининский муниципальный округ, д. Новенькое ... - Фото 2
    1 этаж, общая площадь 109м², участок 6 соток

    Новенькое д направление д. Глазково Продается Дом, 1 этажный, со всеми удобствами в прекрасном тихом месте, земельный участок 6 соток. ровный и сухой, правильной формы. По периметру участка установлен забор...
    • 1 эт.
    • 109 м²
    • 6 сот.
    8 000 000 Р
    Агент
    +7 (910) Показать номер
    Посмотреть контакты
    Дом в Тверская область, Калининский муниципальный округ, пос. ... - Фото 1
    Дом в Тверская область, Калининский муниципальный округ, пос. ... - Фото 2
    2 этажа, общая площадь 140м², участок 8 соток

    Ваш новый дом — простор, комфорт и удобство рядом с городом Этот современный двухэтажный дом площадью 140 м станет вашим уютным пространством для жизни и отдыха. Дом введен в эксплуатацию. Подходит под ипотеку на обычных условиях и сельскую ипотеку....
    • 2 эт.
    • 140 м²
    • 8 сот.
    8 000 000 Р
    Агент
    +7 (910) Показать номер
    Посмотреть контакты
    Дом в Тверская область, Калининский муниципальный округ, д. Новенькое ... - Фото 1
    Дом в Тверская область, Калининский муниципальный округ, д. Новенькое ... - Фото 2
    1 этаж, общая площадь 110м², участок 6 соток

    Продается дом общей площадью 110 м2 в деревне Новенькое, Калининский район, направление Глазково.Коммуникации: газ, электричество, канализация в доме, скважина 42 метра.Дом построен качественно из силикатных блоков, утеплитель, облицован керамическим...
    • 1 эт.
    • 110 м²
    • 6 сот.
    8 000 000 Р
    Агент
    +7 (910) Показать номер
    Посмотреть контакты

    Не нашли подходящего объявления?

    Оставьте заявку, и наши риэлторы подберут купить дом в районе Калининского района

    (0)