Реализация объекта недвижимости приостановлена

Информация об помещении

1
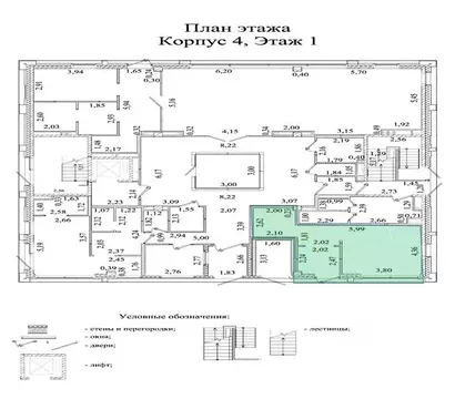
Этаж

Состояние и оснащение

Количество этажей
18
Развернуть

Помещение свободного назначения в Тверская область, Тверь ...

Коммерческие помещения в ЖК Волга Лайф от застройщика Тверской ДСК: пространство для вашего бизнеса в живописном районе Твери.В жилом комплексе Волга Лайф возле реки 3500 заселенных квартир.Адрес: Тверь, ул. НовочеркасскаяПлощадь: 24-198 мЛокация: район с хорошо развитой инфраструктурой, удобен для всех возрастов.Состояние: готово под чистовую отделку.Коммуникации: установлены вентиляционные каналы и электросчетчики.Видимость: возможность размещения вывески и рекламы на окнах.Особенности: нужно обустроить отопление и санузел.Транспорт: рядом остановки общественного транспорта и маршруток. До ж/д станции Дорошиха — 5 минут. (доехать на пролетарку за 2 минуты)В Волга Лайф можно открыть бизнес своей мечты. Здесь будут рады зоомагазину (ведь в домах много питомцев), кулинарии, пекарне, рыбному и колбасному магазинам, магазинам хозяйственных и электротоваров, парикмахерской, спортивным студиям (растяжка, йога), детским развивающим центрам, группам продленного дня, массажному салону, стоматологии, медицинскому центру и другим заведениям.

Читать полностью

    Реализация объекта недвижимости приостановлена

    Не нашли подходящего объявления?

    Оставьте заявку, и наши риэлторы подберут псн в районе Твери

    (0)