62 150 Р 775 $ или 676

Информация об помещении

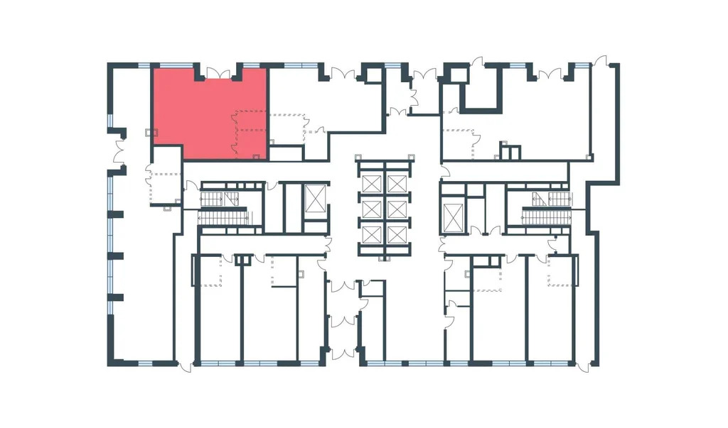
1
Этаж

Состояние и оснащение

Количество этажей
17
Развернуть
Агент
+7 (792) 068-26-89
Начать чат с агентом

Помещение свободного назначения в Тверская область, Тверь ...

Сдается в аренду коммерческое помещение в жилом комплексе Волга Лайф.Адрес: Тверь, ул. Новочеркасская, 51.Площадь: от 23,1 до 56,5 м.Этаж: 1.Преимущества: • Заселение: свыше 3 400 квартир, на данный момент активный рост продаж квартир.• Развитая инфраструктура: район подходит для людей всех возрастов. Рядом Областная больница, перинатальный центр, пансионат.• Удобная транспортная доступность: остановки общественного транспорта и маршруток в шаговой доступности. До ж/д станции Дорошиха всего 5 минут.• Близость к Пролетарскому району и Мигалово: к 2026 году построят Западный мост, что сократит время в пути и увеличит поток транспорта.• Состояние помещения: готово к чистовой отделке.• Коммуникации: установлены вентиляционные системы и электросчетчики.• Размещение рекламы: можно разместить на окнах, в лифтах домов, в группе ВК, ЖК.• Вид: во двор; на ТЦ; на лес.Форматы использования: помещение можно купить или арендовать на длительный срок.В Волга Лайф жители будут рады увидеть зоомагазины, кулинарии, пекарни, рыбные и колбасные лавки, магазины хозяйственных и электротоваров. Также здесь найдут место детские развивающие центры, спортивные комплексы, массажные салоны, стоматология, медицинские центры и заведения общественного питания. Помещения подойдут для офисов или небольших производств.Свяжитесь с нами, чтобы уточнить детали и договориться о просмотре

Читать полностью
    Позвонить Написать
    62 150 Р775 $ или 676
    Агент
    +7 (792) 068-26-89
    Начать чат с агентом
    Похожие предложения
    Помещение свободного назначения в Тверская область, Тверь ул. 2-я ... - Фото 1
    Помещение свободного назначения в Тверская область, Тверь ул. 2-я ... - Фото 2
    Сдается в аренду нежилое помещение свободной планировки со следующими характеристиками:- общая площадь 44,2 кв.м.;- электрическая мощность 15 кВт;- все коммуникации центральные;- 1-ый этаж МКД;- отдельный вход;- 1-ая линия от дороги;- витражи;- парковка...
    • 1/9 эт.
    61 880 Р
    Агент
    +7 (910) Показать номер
    Посмотреть контакты
    Помещение свободного назначения в Тверская область, Тверь Озерная ул., ... - Фото 1
    Помещение свободного назначения в Тверская область, Тверь Озерная ул., ... - Фото 2
    Помещение свободного назначения расположено на третьем этаже административного здания, состоит из двух кабинетов, конференц-зала, -117 кв.м.подсобных помещений, туалетов. Качественный офисный ремонт, заканчивается отделка, центральные коммуникации, есть...
    • 3/4 эт.
    62 000 Р
    Агент
    +7 (910) Показать номер
    Посмотреть контакты
    Аренда ПСН площадью 190,6 м2 - Фото 1
    Аренда ПСН площадью 190,6 м2 - Фото 2
    Аренда ПСН площадью 190,6 м2 - Фото 3
    Аренда ПСН площадью 190,6 м2 - Фото 4
    полезная площадь 190.6м²

    Помещение с назначением кафетерий, расположенное на 1 этаже дома в составе ЖК СОБЫТИЕ-4. ЖК Событие-4 флагман мкр.Раменки. Это не просто жилой комплекс бизнес класса, это настоящий вертикальный город будущего с парящими мостами и скай-парком, который...
    • 190.6 м²
    • 1/49 эт.
    1 000 000 Р /в месяц
    Агент
    +7 (495) Показать номер
    Посмотреть контакты
    Аренда ПСН площадью 68,4 м2 - Фото 1
    Аренда ПСН площадью 68,4 м2 - Фото 2
    Аренда ПСН площадью 68,4 м2 - Фото 3
    Аренда ПСН площадью 68,4 м2 - Фото 4
    Аренда ПСН площадью 68,4 м2 - Фото 5
    Аренда ПСН площадью 68,4 м2 - Фото 6
    Аренда ПСН площадью 68,4 м2 - Фото 7
    Аренда ПСН площадью 68,4 м2 - Фото 8
    полезная площадь 68.4м²

    Сдается помещение площадью 68.4 кв.м, в прямую аренду на любой срок. Минимальный срок аренды 36 мес с предоплатой за 1 месяц. Помещение располагается в 21-этажном жилом комплексе в 8 мин. пешком от м.Терехово, район Хорошево-Мневники. Помещение находится...
    • 68.4 м²
    • 1/21 эт.
    350 000 Р /в месяц
    Агент
    +7 (495) Показать номер
    Посмотреть контакты
    Аренда ПСН площадью 53.5 м2 - Фото 1
    Аренда ПСН площадью 53.5 м2 - Фото 2
    Аренда ПСН площадью 53.5 м2 - Фото 3
    Аренда ПСН площадью 53.5 м2 - Фото 4
    Аренда ПСН площадью 53.5 м2 - Фото 5
    Аренда ПСН площадью 53.5 м2 - Фото 6
    Аренда ПСН площадью 53.5 м2 - Фото 7
    Аренда ПСН площадью 53.5 м2 - Фото 8
    Аренда ПСН площадью 53.5 м2 - Фото 9
    полезная площадь 53.5м²

    Сдаётся коммерческое помещение свободного назначения в ЖК «Дубровка от Гранель» Коммерческое помещение площадью 53,5 м на 1-м этаже жилого дома бизнес-класса в ЮВАО Москвы. ЖК «Дубровка от Гранель» расположен в шаговой доступности от метро «Дубровка»...
    • 53.5 м²
    • 1/1 эт.
    272 900 Р /в месяц
    Агент
    +7 (495) Показать номер
    Посмотреть контакты

    Не нашли подходящего объявления?

    Оставьте заявку, и наши риэлторы подберут псн в районе Твери

    (0)