803 400 Р 9 810 $ или 8 620

Информация об помещении

1
Этаж

Состояние и оснащение

Количество этажей
3
Развернуть
Агент
+7 (915) 731-24-47
Начать чат с агентом

Помещение свободного назначения в Тверская область, Тверь ул. Андрея ...

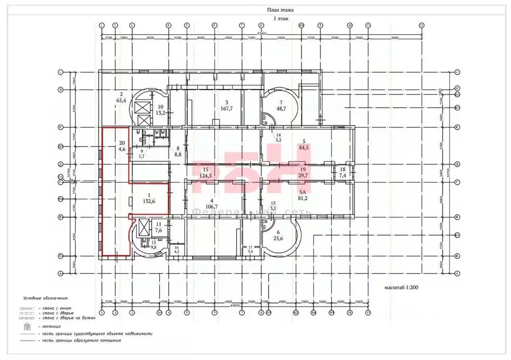
Предложение по аренде уникального объекта в историческом центре ТвериПредлагаем к рассмотрению возможность аренды престижного нежилого здания площадью 535,6 кв.м., расположенного в самом сердце исторического центра Твери, по адресу: город Тверь, улица А. Дементьева, дом 33 (Володарского, 33).Вместе со зданием в аренду передается земельный участок площадью 1229 кв.м., который идеально подходит для организации парковки, летнего кафе или других сопутствующих сервисов, обеспечивая комфортную эксплуатацию объекта.Данное здание представляет собой Объект культурного наследия регионального значения, построенный в XIX веке. После завершения комплексных ремонтных и реставрационных работ, оно полностью адаптировано для современного использования, отвечая самым высоким стандартам качества и комфорта.Ключевые характеристики объекта:Пространство:2 удобные входные группы, 4 санузла, максимальная высота потолков до 5 метров, что создает ощущение простора и свободы.Конструктив:Надежные монолитные железобетонные перекрытия, прочные стены из старинного керамического кирпича, современные стеклопакеты в деревянных рамах, а также долговечная фальцевая металлическая кровля.Коммуникации:Полностью централизованные системы холодного водоснабжения, канализации и отопления. Обеспечена стабильная подача электроэнергии мощностью 85 кВт.Это идеальное место для реализации любых бизнес-проектов, будь то ресторан, офис, магазин или клиника, если Вы цените престиж, историю и современный комфорт.Не упустите шанс стать частью истории Твери и создать успешный бизнес в уникальном месте

Читать полностью
    Позвонить Написать
    803 400 Р9 810 $ или 8 620
    Агент
    +7 (915) 731-24-47
    Начать чат с агентом
    Похожие предложения
    Помещение свободного назначения в Татарстан, Казань Чистопольская ул., ... - Фото 1
    Помещение свободного назначения в Татарстан, Казань Чистопольская ул., ... - Фото 2
    Предложение от собственника Предлагаем в аренду помещение свободного назначения 397,1 кв.м.- 278.1 м нa 1-м этажe- 119 м в цокольном этaже- 1я линия;- приточно-вытяжная вентиляция;- подводка для кондиционеров;- пожарная сигнализация;- сан.узел, мокрые...
    • 1/4 эт.
    794 000 Р
    Агент
    +7 (919) Показать номер
    Посмотреть контакты
    Помещение свободного назначения в Москва Можайское ш., 39 (258 м) - Фото 1
    Помещение свободного назначения в Москва Можайское ш., 39 (258 м) - Фото 2
    ID: 584345Помещение свободного назначения в ЗАО Москвы. Торговый центр находится на оживленной магистрали, с плотным автотрафиком в промышленно развитом районе. Плотный жилой массив, 10 минут пешком до станции метро Кунцевская. Сложившееся торговое окружение,...
    • 1/1 эт.
    800 000 Р
    Агент
    +7 (980) Показать номер
    Посмотреть контакты
    Помещение свободного назначения в Воронежская область, Воронеж ул. ... - Фото 1
    Помещение свободного назначения в Воронежская область, Воронеж ул. ... - Фото 2
    В самом центре города Воронежа продается помещения с красивым видом От собственника, без комиссии В действующем БЦ Фрегат В аренду помещение на первом этаже. Площадь помещения - 800 мПо всем вопросам обращайтесь к Белоглазовой ЮлииАрт.
    • 1/7 эт.
    800 000 Р
    Агент
    +7 (910) Показать номер
    Посмотреть контакты
    Помещение свободного назначения в Московская область, Красногорск бул. ... - Фото 1
    Помещение свободного назначения в Московская область, Красногорск бул. ... - Фото 2
    Сдается помещение сводного назначения , подойдет для любого вида деятельности , помещение состоит из двух этажей , площадь 1-158 кв.м, 2 этажа -310 кв. м , потолок 1 этажа-3,45 м, второго-2,80. 1 этаж сдаем полностью, второй этаж можно разделить на несколько...
    • 1/12 эт.
    800 000 Р
    Агент
    +7 (980) Показать номер
    Посмотреть контакты
    Помещение свободного назначения в Санкт-Петербург Заставская ул., 33с3 ... - Фото 1
    Помещение свободного назначения в Санкт-Петербург Заставская ул., 33с3 ... - Фото 2
    Уникальные редевеломпент объекты в центре Санкт-Петербурга Беспроцентная рассрочка при оплате первоначального взноса (*подробности у менеджера) __________Предлагаем в аренду просторное коммерческое помещение 268,4 м на двух этажахРасположение: Бутик-апарт-отель...
    • 2/4 эт.
    791 780 Р
    Агент
    +7 (911) Показать номер
    Посмотреть контакты

    Не нашли подходящего объявления?

    Оставьте заявку, и наши риэлторы подберут псн в районе Твери

    (0)