10 000 000 Р 129 900 $ или 111 100

Информация об участке

4 cоток
Площадь участка
Развернуть
Агент
+7 (980) 622-34-32
Начать чат с агентом

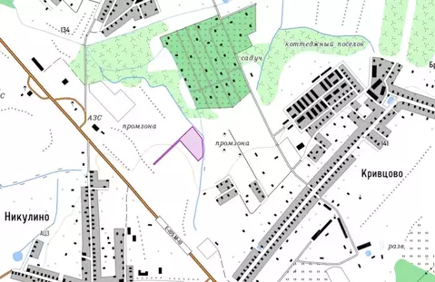
Участок в Тверская область, Тверь Барминовская ул., 5 (4.8 сот.)

Одно из выгодных месторасположений в городе Твери (Затверецкий квартал) для постройки индивидуального жилого дома/коттеджа, в районе малоэтажной застройки. Продаётся Земельный участок 4,8 сотки для индивидуального жилищного строительства в Заволжском районе, кадастровый номер 69:40:0100602:139Учacток правильнoй формы, поэтoму выбор проекта домa и ландшaфтного дизaйнa мaкcимaльнo ширoкий. Единственный не застроенный участок в этой локации.Все коммуникации центральные: электричество, вода, канализация, газ по границе участка.Отличное месторасположение, асфальтированная дорога до участка, тихая, зелёная улица. Развитая инфраструктура. В шаговой доступности: ТЦ Маяковский , школы, детские сады, аптеки, рядом поликлиника, спортивный комплекс, остановка транспорта, река Волга,до центра города 15 минут.

Читать полностью

    Для того, чтобы купить земельный участок площадью 4 сотки по адресу: Тверь, Заволжский, ул. Барминовская, 5, позвоните по телефону +7 (980) 622-34-32. Торопитесь! Объявление №20009085991 о продаже земельного участка площадью 4 сотки опубликовано 03 апреля 2026.

    Позвонить Написать
    10 000 000 Р129 900 $ или 111 100
    Агент
    +7 (980) 622-34-32
    Начать чат с агентом
    Похожие предложения
    Участок в Тверская область, Конаковский муниципальный округ, Деревня ... - Фото 1
    Участок в Тверская область, Конаковский муниципальный округ, Деревня ... - Фото 2
    участок 6 соток

    Продаётся земельный участок у реки в роскошном коттеджном поселке Волжский берег Коттеджный поселок расположен на первой линии Волги, открывая потрясающий вид на реку и окружающую природу. Рядом находятся национальный парк Завидово и курортный комплекс...
    • 6 сот.
    9 135 200 Р
    Агент
    +7 (915) Показать номер
    Посмотреть контакты
    Участок в Тверская область, Конаковский муниципальный округ, Волжские ... - Фото 1
    Участок в Тверская область, Конаковский муниципальный округ, Волжские ... - Фото 2
    участок 12 соток

    Уникальное предложение от собственника Идеальный участок правильной формы, окруженный соснами и елями Участок N59Площадь: 12,6 сот. Кадастровый номер: 69:15:0000018:1712Участок мечты в КП Волжские Рассветы - природа и комфорт на берегу Волги Лучшая...
    • 12 сот.
    10 000 000 Р
    Агент
    +7 (910) Показать номер
    Посмотреть контакты
    Участок в Тверская область, Конаково Пригородная ул. (8.0 сот.) - Фото 1
    Участок в Тверская область, Конаково Пригородная ул. (8.0 сот.) - Фото 2
    участок 8 соток

    Земельный участок в премиальном КП на берегу Волги Транспортная доступность: посёлок расположен в 120 км к северу от Москвы. Удобный проезд по Ленинградскому шоссе или трассе М-11.Об участке: категория земель - земли населённых пунктов. Вид разрешённого...
    • 8 сот.
    10 500 000 Р
    Агент
    +7 (915) Показать номер
    Посмотреть контакты
    Участок в Тверская область, Конаковский муниципальный округ, с. ... - Фото 1
    Участок в Тверская область, Конаковский муниципальный округ, с. ... - Фото 2
    участок 930 соток

    Земельный участок 9, 3 га. сельскохозяйственного назначения с разрешенным использованием - под крестьянско-фермерское хозяйство,асположен в 40 км. от Твери по направлению на Москву, участок прилегает к трассе М-10 в районе базы отдыха Волга-Виллс , участок...
    • 930 сот.
    10 000 000 Р
    Агент
    +7 (910) Показать номер
    Посмотреть контакты
    Участок в Тверская область, Старицкий муниципальный округ, д. Бутово  ... - Фото 1
    Участок в Тверская область, Старицкий муниципальный округ, д. Бутово  ... - Фото 2
    участок 96 соток

    Продаётся участок 96 соток ( возможно расширение участка до нескольких гектар), для дачное строительства (с возможностью прописки). Участок расположен по адресу: Тверская область, Старицкий муниципальный округ, деревня Бутово.(кадастровый номер: 69:32:0000020:276)...
    • 96 сот.
    10 000 000 Р
    Агент
    +7 (919) Показать номер
    Посмотреть контакты

    Не нашли подходящего объявления?

    Оставьте заявку, и наши риэлторы подберут земельный участок в районе Твери

    (0)