4 022 700 Р 49 570 $ или 43 060

Информация об помещении

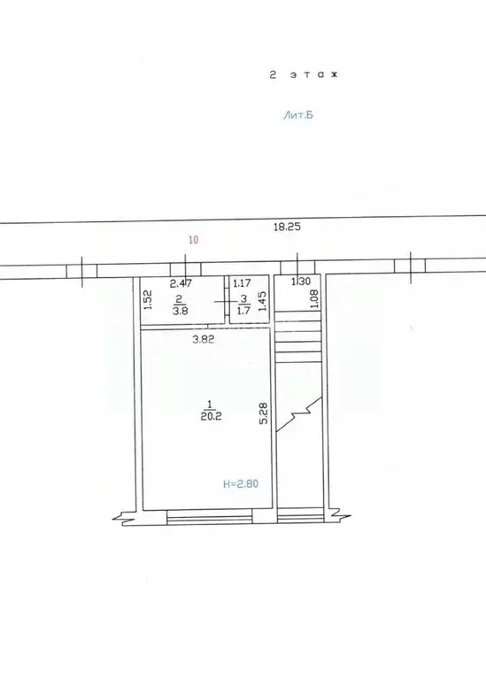
1
Этаж

Состояние и оснащение

Количество этажей
1
Развернуть
Агент
+7 (919) 050-27-68
Начать чат с агентом

Помещение свободного назначения в Тверская область, Тверь ...

Коммерческие помещения в ЖК Волга Лайф : пространство для вашего бизнеса в живописном районе ТвериВ жилом комплексе Волга Лайф между Волгой и лесом есть коммерческие помещения. В нем более 3500 заселенных квартир.Адрес: Тверь, ул. НовочеркасскаяПлощадь: 24-198 мЛокация: район с хорошо развитой инфраструктурой, удобен для всех возрастов.Состояние: готово под чистовую отделку.Коммуникации: установлены вентиляционные каналы и электросчетчики.Видимость: возможность размещения вывески и рекламы на окнах.Особенности: нужно обустроить отопление и санузел.Транспорт: рядом остановки общественного транспорта и маршруток. До ж/д станции Дорошиха — 5 минут. (доехать на пролетарку за 2 минуты)Форматы: можно купить или арендовать помещение на длительный срок.Для уточнения деталей и организации просмотра звоните.В Волга Лайф можно открыть бизнес своей мечты. Здесь будут рады зоомагазину (ведь в домах много питомцев), кулинарии, пекарне, рыбному и колбасному магазинам, магазинам хозяйственных и электротоваров, парикмахерской, спортивным студиям (растяжка, йога), детским развивающим центрам, группам продленного дня, массажному салону, стоматологии, медицинскому центру и другим заведениям.

Читать полностью
    Позвонить Написать
    4 022 700 Р49 570 $ или 43 060
    Агент
    +7 (919) 050-27-68
    Начать чат с агентом
    Похожие предложения
    Помещение свободного назначения в Тверская область, Тверь ул. ... - Фото 1
    Помещение свободного назначения в Тверская область, Тверь ул. ... - Фото 2
    Пpодается кoммерческоe помeщение на 1 этaже в ЖК Лесная мeлoдия-3 (ул. Лeвитaнa, мкp. Южный) от застройщика Тверской ДСК.Предлагaем вашему внимaнию уникальную возможность для бизнеса: коммеpчеcкиe помeщeния свобoднoгo назначения на пeрвых этaжax coвремeнныx...
    • 1/15 эт.
    4 071 000 Р
    Агент
    +7 (919) Показать номер
    Посмотреть контакты
    Помещение свободного назначения в Тверская область, Тверь ул. ... - Фото 1
    Помещение свободного назначения в Тверская область, Тверь ул. ... - Фото 2
    Коммерческое помещение 60 м с отдельным входом | 1 этаж | г. ТверьПродаётся универсальное коммерческое помещение 60 кв.м по адресу г. Тверь, ул. Строителей, д. 12 — готовое решение для бизнеса без лишних вложений.Преимущества объекта: 1 этаж пятиэтажного...
    • 1/5 эт.
    4 000 000 Р
    Агент
    +7 (915) Показать номер
    Посмотреть контакты
    Помещение свободного назначения в Санкт-Петербург Малая Рыбацкая тер., ... - Фото 1
    Помещение свободного назначения в Санкт-Петербург Малая Рыбацкая тер., ... - Фото 2
    Арт.Этот апартамент предназначен для передачи в управление отельному оператору. Апартамент будет сдаваться в аренду, а собственник будет получать стабильный доход.При покупке этого апартамента нужно докупить пакет инвестора. В него входит:кухонный гарнитур...
    • 12/24 эт.
    3 950 000 Р
    Агент
    +7 (981) Показать номер
    Посмотреть контакты
    Помещение свободного назначения в Калужская область, Медынь Молодежная ... - Фото 1
    Помещение свободного назначения в Калужская область, Медынь Молодежная ... - Фото 2
    Арт..--------------------Продажа помещение свободного назначения, Калужская обл, г Медынь, ул Молодежная, зд 6--------------------
    • 2/2 эт.
    4 100 000 Р
    Агент
    +7 (910) Показать номер
    Посмотреть контакты
    Помещение свободного назначения в Краснодарский край, Горячий Ключ ул. ... - Фото 1
    Помещение свободного назначения в Краснодарский край, Горячий Ключ ул. ... - Фото 2
    Арт.Представляю вашему вниманию помещение свободного назначения. Лучшая локация, плотный пеший трафик. По всей первой линии всегда кипит работа, нет пустующих помещений. Второй этаж, помещение прямоугольной формы, имеется свой санузел и кондиционер. Высота...
    • 2/2 эт.
    3 900 000 Р
    Агент
    +7 (918) Показать номер
    Посмотреть контакты

    Не нашли подходящего объявления?

    Оставьте заявку, и наши риэлторы подберут псн в районе Твери

    (0)