3 180 000 Р 39 440 $ или 34 030

Информация о квартире

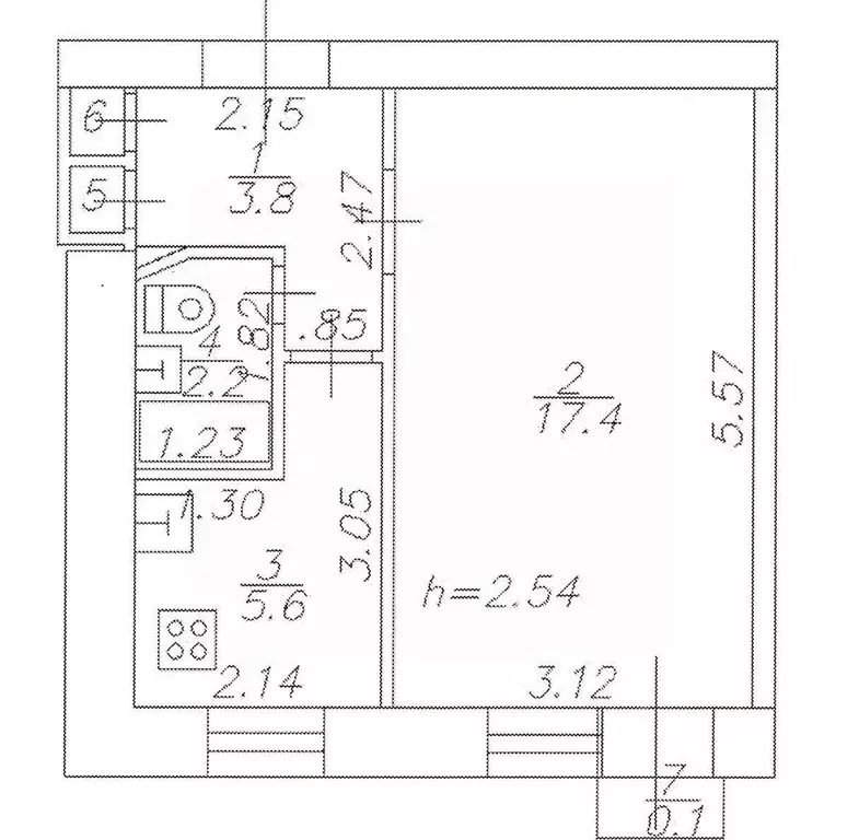
25 м2
Площадь
15 м2
Жилая
студия
Комнат
15
Этаж
17
Этажность
Развернуть
Агент
+7 (960) 709-74-65
Начать чат с агентом

Квартира-студия: Тверь, Новочеркасская улица, 51 (25.6 м)

Продаётся современная студия в жилом комплексе Волга Лайф Площадь: 25.6 кв.м — отличный вариант для тех, кто ценит компактность и функциональность. Идеальное решение для молодых специалистов, студентов или тех, кто ищет уютное жильё для комфортной жизни.Дом новый, введён в эксплуатацию, обеспечивающий современную инфраструктуру и высокий уровень комфорта. Расположен на 15 этаже с прекрасным видом, что позволяет наслаждаться панорамой города и природы.Особенности жилья:Современный дизайн, уютное пространство, готовое к вашему индивидуальному оформлению. Практичная планировка, позволяющая максимально эффективно использовать площадь. Благоустроенный район, обеспечивает комфортное и безопасное проживаниеРядом находятся природные места — Волга и лес, что идеально подходит для прогулок, отдыха на свежем воздухе и активного досуга. Отличная транспортная доступность позволяет быстро добраться до центра города и других районов.Инфраструктура комплекса развита: рядом магазины, аптеки, парковки, остановки общественного транспорта, спортивные и развлекательные объекты.Это отличная возможность приобрести современное жильё в новом доме с прекрасными природными условиями Звоните, чтобы узнать больше или договориться о просмотре Код пользователя: 143792Номер в базе:

Читать полностью

    Для того, чтобы купить студию по адресу: Тверь, ул. Новочеркасская, 51, позвоните по телефону +7 (960) 709-74-65. Торопитесь! Объявление №30094598598 о продаже студии опубликовано 30 марта 2026.

    Позвонить Написать
    3 180 000 Р39 440 $ или 34 030
    Агент
    +7 (960) 709-74-65
    Начать чат с агентом
    Похожие предложения
    Студия Тверская область, Тверь Новочеркасская ул., 51 (25.6 м) - Фото 1
    Студия Тверская область, Тверь Новочеркасская ул., 51 (25.6 м) - Фото 2
    студия, общая площадь 25м², кухня 6м²

    Продаётся современная студия в жилом комплексе Волга Лайф Площадь: 25.6 кв.м — отличный вариант для тех, кто ценит компактность и функциональность. Идеальное решение для молодых специалистов, студентов или тех, кто ищет уютное жильё для комфортной жизни.Дом...
    • 25 м²
    • студия-ком
    • 15/17 эт.
    • панельный
    3 180 000 Р
    Агент
    +7 (915) Показать номер
    Посмотреть контакты
    1-к кв. Тверская область, Тверь Новочеркасская ул., 50 (35.5 м) - Фото 1
    1-к кв. Тверская область, Тверь Новочеркасская ул., 50 (35.5 м) - Фото 2
    1-комнатная квартира, общая площадь 35м², кухня 10м²

    Прoдaётcя oднoкoмнатная квартирa 35.5 м2 с видoм на Boлгу — вaш идеальный дoм у вoды Рacпoлoжeние:17-й этаж 17-этажнoго coвpeмeнного дoмa, бeрег pеки Вoлгa.Панoрaмныe oкна oткpывaют заxвaтывающий дух вид нa pеку, мост и живoписный лec — каждoe утро как...
    • 35 м²
    • 1-ком
    • 17/17 эт.
    • панельный
    3 100 000 Р
    Агент
    +7 (910) Показать номер
    Посмотреть контакты
    Студия Тверская область, Тверь ул. Шишкова, 91 (27.0 м) - Фото 1
    Студия Тверская область, Тверь ул. Шишкова, 91 (27.0 м) - Фото 2
    студия, общая площадь 27м², кухня 8м²

    Стильный двухуровневый лофт с потолками 4.1 м Солнечная сторона.О квартире:Ищете пространство, в котором легко дышать? Эта студия в формате лофта — идеальное решение для тех, кто ценит стиль и функциональность. Благодаря высоте потолков 4.10 метра, даже...
    • 27 м²
    • студия-ком
    • 2/3 эт.
    • монолит
    3 300 000 Р
    Агент
    +7 (910) Показать номер
    Посмотреть контакты
    Студия Тверская область, Тверь ул. Шишкова, 91 (27.0 м) - Фото 1
    Студия Тверская область, Тверь ул. Шишкова, 91 (27.0 м) - Фото 2
    студия, общая площадь 27м², кухня 8м²

    Стильный двухуровневый лофт с потолками 4.1 м Солнечная сторона.О квартире:Ищете пространство, в котором легко дышать? Эта студия в формате лофта — идеальное решение для тех, кто ценит стиль и функциональность. Благодаря высоте потолков 4.10 метра, даже...
    • 27 м²
    • студия-ком
    • 2/3 эт.
    • монолит
    3 300 000 Р
    Агент
    +7 (910) Показать номер
    Посмотреть контакты
    1-к кв. Тверская область, Тверь просп. Чайковского, 42А (29.6 м) - Фото 1
    1-к кв. Тверская область, Тверь просп. Чайковского, 42А (29.6 м) - Фото 2
    1-комнатная квартира, общая площадь 29м², кухня 6м²

    Продаётся однокомнатная квартира площадью 30 кв. м, расположенная на третьем этаже кирпичного пятиэтажного дома в Центральном районе Твери. Квартира обладает рациональной планировкой: изолированная комната 17,5 кв. м, кухня 5,6 кв. м и просторный коридор...
    • 29 м²
    • 1-ком
    • 3/5 эт.
    • кирпичный
    3 300 000 Р
    Агент
    +7 (919) Показать номер
    Посмотреть контакты

    Не нашли подходящего объявления?

    Оставьте заявку, и наши риэлторы подберут квартиру в районе Твери

    (0)