Россия, Тверская область, Тверь, улица С.Я. Лемешева, 6

Реализация объекта недвижимости приостановлена

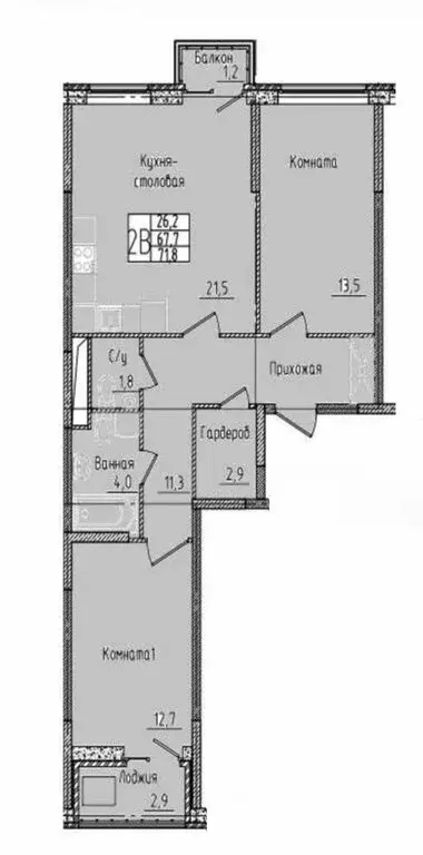
Информация о квартире

71.0 м2
Площадь
26.0 м2
Жилая
21.0 м2
Кухня
2
Комнаты
10
Этаж
13
Этажность
Развернуть

2-комнатная квартира: Тверь, улица С.Я. Лемешева, 6 (71.8 м)

Просторная евротрешка в современном жилом комплексе комфорт-класса плюс Южный. Дом кирпичный с панорамным остеклением.Отличная планировка Кухня гостиная 21,5 кв.м, изолированные комнаты на разные стороны. Санузел просторный, раздельный. В квартире есть гардеробная. Из гостиной балкон, из комнаты лоджия. Дополнительно можно купить кладовую в цоколе дома. (Удобно хранить резину и другие крупногабаритные вещи). И есть свое машиноместо в подземной парковке, тоже можно купить и не переживать за наличие парковки по вечерам. При покупке квартиры, машиноместа и кладовой готовы обсудить разумный торг Ремонт: Квартира очень светлая, теплая. В ЖК своя котельная, автономное отопление (низкие коммунальные платежи). Квартира с ремонтом вайт бокс. Сделана разводка отопления и электрики, стяжка пола, штукатурка стен, качественные остекление и входная дверь. Установлены счетчики.В ЖК закрытая территория с системой видеонаблюдения. Система умный дом. Подъезды сквозные с современными пассажирским и грузопассажирским лифтами, есть даже лапомойка (душевая для лап домашних питомцев прямо в подъезде). Зеленый двор с развивающими детскими площадками и лаундж-зоной. Собственная управляющая компания, которая следит за чистотой и порядком на территории ЖК.Очень развитая инфраструктура, активно развивающийся район. Рядом гипермаркет Глобус. В шаговой доступности детские сады, школы, поликлиники, остановки общественного транспорта, спортивные комплексы и т.д.

Читать полностью

    Реализация объекта недвижимости приостановлена

    Не нашли подходящего объявления?

    Оставьте заявку, и наши риэлторы подберут квартиру в районе Твери

    (0)