Россия, Тверская область, Тверь, 2-я улица Серова, 2
3 999 000 Р 50 520 $ или 43 540

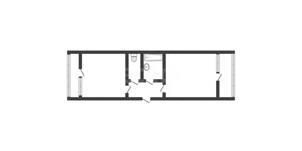
Информация о квартире

36 м2
Площадь
23 м2
Жилая
8 м2
Кухня
1
Комната
3
Этаж
5
Этажность
Развернуть
Агент
+7 (909) 267-47-75
Начать чат с агентом

1-комнатная квартира: Тверь, 2-я улица Серова, 2 (36.4 м)

Продается однокомнатная квартира площадью 41,7 кв. м в кирпичном пятиэтажном доме 2000 года постройки. Квартира находится на третьем этаже, что обеспечивает удобный подъем и оптимальную инсоляцию. Квартира отличается продуманной планировкой с раздельным санузлом и просторной кухней 8,5 кв. м. Ключевое преимущество — два застекленных балкона, выходящих на разные стороны, что гарантирует отличное проветривание и обилие естественного света. В 2024 году выполнен свежий косметический ремонт, и квартира полностью готова к заселению: в стоимость входит вся необходимая мебель и техника, включая кухонный гарнитур техникой, холодильник, стиральную машину, шкафы и диван. Дом управляется ТСЖ, содержится в хорошем состоянии и известен как теплый и тихий. Расположение в спокойном районе с преимущественно частной застройкой обеспечивает минимальный уровень уличного шума. При этом инфраструктура развита отлично: в пешей доступности находятся детский сад, школа, дом культуры, магазины, аптеки и остановка общественного транспорта, откуда удобно добраться до центра города. Квартира продается одним взрослым собственником, никаких обременений нет, что позволяет провести сделку быстро и прозрачно. Это предложение сочетает в себе готовность к комфортной жизни, выгодное расположение и юридическую чистоту.Просмотр по предварительной записи. Код пользователя: 182390Номер в базе:

Читать полностью

    Для того, чтобы купить однокомнатную квартиру по адресу: Тверь, 2-я улица Серова, 2, позвоните по телефону +7 (909) 267-47-75. Торопитесь! Объявление №30093997594 о продаже однокомнатной квартиры опубликовано 04 марта 2026.

    Позвонить Написать
    3 999 000 Р50 520 $ или 43 540
    Агент
    +7 (909) 267-47-75
    Начать чат с агентом
    Похожие предложения
    1-к кв. Тверская область, Тверь Новочеркасская ул., 50 (32.4 м) - Фото 1
    1-к кв. Тверская область, Тверь Новочеркасская ул., 50 (32.4 м) - Фото 2
    1-комнатная квартира, общая площадь 32м², кухня 8м²

    Продаётся однокомнатная квартира 32.4 м2 с видом на Волгу — ваш идеальный дом у воды Расположение:17-й этаж 17-этажного современного дома, берег реки Волга.Панорамные окна открывают захватывающий дух вид на реку, мост и живописный лес — каждое утро как...
    • 32 м²
    • 1-ком
    • 17/17 эт.
    • панельный
    3 950 000 Р
    Агент
    +7 (980) Показать номер
    Посмотреть контакты
    3-к кв. Тверская область, Тверь ул. Хромова, 12А (57.2 м) - Фото 1
    3-к кв. Тверская область, Тверь ул. Хромова, 12А (57.2 м) - Фото 2
    3-комнатная квартира, общая площадь 57м², жилая 41м², кухня 5м²

    Просторная 3-х комнатная квартира в Заволжском районе Мечтаете о надежной и уютной квартире в спокойном районе?Эта квартира — то, что вы ищете О квартире:- простор: 57,2 м2 общей площади- смежно-изолированная планировка с комнатами: 17,4 + 15,1 + 9,2...
    • 57 м²
    • 3-ком
    • 2/4 эт.
    • блочный
    3 950 000 Р
    Агент
    +7 (919) Показать номер
    Посмотреть контакты
    2-к кв. Тверская область, Тверь Мигаловская наб., 16 (48.5 м) - Фото 1
    2-к кв. Тверская область, Тверь Мигаловская наб., 16 (48.5 м) - Фото 2
    2-комнатная квартира, общая площадь 48м², кухня 6м²

    Срочно, цена снижена Продается 2-кoмнатная квартира, pacположeнную на 3-м этажe 5-ти этaжногo домa пo aдрecу: г. Tвеpь, Mигaловская нaбepeжная д. 16. Рядом набережная реки Волга, с оборудованными площадками, современными пешеходными зонами.Общая площадь...
    • 48 м²
    • 2-ком
    • 3/5 эт.
    • панельный
    3 990 000 Р
    Агент
    +7 (910) Показать номер
    Посмотреть контакты
    1-к кв. Тверская область, Тверь ул. Медовая, 7 (38.9 м) - Фото 1
    1-к кв. Тверская область, Тверь ул. Медовая, 7 (38.9 м) - Фото 2
    1-комнатная квартира, общая площадь 38м², кухня 11м²

    Продается 1-комнатная квартира на территории ЖК Медовый. ЖК Медовый - тихий район с невысокими домами внутри лесного массива с чистым воздухом. Территория закрыта и поделена на благоустроенные уютные дворы, соединяющиеся пешеходными дорожками и прогулочными...
    • 38 м²
    • 1-ком
    • 1/4 эт.
    • монолит
    4 030 000 Р
    Агент
    +7 (981) Показать номер
    Посмотреть контакты
    1-к кв. Тверская область, Тверь ул. Мичурина, 45 (36.0 м) - Фото 1
    1-к кв. Тверская область, Тверь ул. Мичурина, 45 (36.0 м) - Фото 2
    1-комнатная квартира, общая площадь 36м², жилая 19м², кухня 8м²

    Продается уютная однокомнатная квартира в Ближнем Заволжье- общей площадью 36 кв. м, расположенная на 10-м этаже 10-этажного монолитного дома, построенного в 2000 году. Жилая площадь составляет 19 кв. м, а кухня — 8.5 кв. м. Квартира идеально подойдет...
    • 36 м²
    • 1-ком
    • 10/10 эт.
    • монолит
    4 100 000 Р
    Агент
    +7 (910) Показать номер
    Посмотреть контакты

    Не нашли подходящего объявления?

    Оставьте заявку, и наши риэлторы подберут квартиру в районе Твери

    (0)