Реализация объекта недвижимости приостановлена

Информация о квартире

58.0 м2
Площадь
44.0 м2
Жилая
9.0 м2
Кухня
2
Комнаты
5
Этаж
12
Этажность
Развернуть

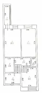
2-комнатная квартира: Тверь, Волоколамский проспект, 3 (58.6 м)

Двухкомнатная квартира общей площадью 58,6 м в кирпичном доме предлагает нестандартную и функциональную трехуровневую планировку, обеспечивающую четкое зонирование пространства. На первом уровне расположена прихожая, на втором — изолированная ванная комната, санузел и две отдельные комнаты с окнами во двор, что гарантирует тишину и приватность. Третий уровень отведен под кухню. Объект продается в отличном состоянии с полной меблировкой и всей бытовой техникой, включая гарнитур от «Лазурит . Дом отличается теплыми стенами и образцовым содержанием благодаря собственному ТСЖ, работает консьерж и два лифта — пассажирский и грузовой. Придомовая территория закрыта, а на охраняемой парковке всегда имеются свободные места. Квартира находится в собственности более пяти лет у одного владельца, что упрощает процедуру сделки. Это решение для тех, кто ценит порядок, развитую инфраструктуру дома и рациональное использование каждого метра. Код пользователя: 195296Номер в базе:

Читать полностью

    Реализация объекта недвижимости приостановлена

    Не нашли подходящего объявления?

    Оставьте заявку, и наши риэлторы подберут квартиру в районе Твери

    (0)