4 100 000 Р 52 630 $ или 44 870

Информация о квартире

42 м2
Площадь
32 м2
Жилая
6 м2
Кухня
2
Комнаты
4
Этаж
4
Этажность
Развернуть
Агент
+7 (960) 710-90-06
Начать чат с агентом

2-комнатная квартира: Тверь, улица Мусоргского, 6к2 (42.6 м)

Продается отличная двухкомнатная квартира в самом центре Ближнего Заволжья Дом полностью кирпичный, что гарантирует хорошую тепло- и шумоизоляцию.Квартира общей площадью 43 кв.м., продуманная планировка: функциональная кухня 6 кв.м., две изолированные комнаты площадью 16 и 11 кв.м., одна из которых имеет выход на балкон.Квартира очень теплая, располагается на 4 этаже, не угловая.В квартире сделан качественный новый ремонт: установлены пластиковые окна, санузел полностью в плитке, установлена новая сантехника, в коридоре и кухне на полу плитка, в комнате ламинат, поклеены новые обои, во всей квартире натяжные потолки. Отделка и состояние квартиры не требуют дополнительных вложений, квартира подойдет как для личного проживания, так и для сдачи в аренду.Инфраструктура района одна из самых развитых в нашем городе. В шаговой доступности: школы № 17 (с математическим уклоном, входит в ТОП лучших в России ) 35, 46, детские сады, крупные продуктовые и хозяйственные магазины, торговый центр и многое другое, остановка общественного транспорта с возможностью добраться в любую точку города находится прямо возле дома. Буквально 5 минут пешком и вы окажетесь на шикарной набережной Волги, 15 минут пешей прогулки и вы уже в центре города. Квартира отлично подойдет для проживания студентов всех Тверских вузов: ТГМА, ТвГУ и ТвГТУ, а так же для посуточной аренды, из-за выгодного расположения дома.Звоните, показы в удобное для вас время Код пользователя: 39915Номер в базе:

Читать полностью

    Для того, чтобы купить двухкомнатную квартиру по адресу: Тверь, ул. Мусоргского, 6к2, позвоните по телефону +7 (960) 710-90-06. Торопитесь! Объявление №30092379332 о продаже двухкомнатной квартиры опубликовано Вчера.

    Позвонить Написать
    4 100 000 Р52 630 $ или 44 870
    Агент
    +7 (960) 710-90-06
    Начать чат с агентом
    Похожие предложения
    2-к кв. Тверская область, Тверь Петербургское ш., 45А (43.0 м) - Фото 1
    2-к кв. Тверская область, Тверь Петербургское ш., 45А (43.0 м) - Фото 2
    2-комнатная квартира, общая площадь 43м², жилая 31м², кухня 5м²

    Продается уютная и полностью обновленная 2-комнатная квартира на 4/4 эт. кирпичного дома. Характеристики Общая площадь: 43 м Комнаты: 18 и 13 м Кухня: 5,8 м Санузел: 3,0 м Высота потолков: 2,5 м Балкон 2,4 м, не застеклён Окна выходят во двор Квартира...
    • 43 м²
    • 2-ком
    • 4/4 эт.
    4 200 000 Р
    Агент
    +7 (915) Показать номер
    Посмотреть контакты
    2-к кв. Тверская область, Тверь Волоколамский просп., 7к2 (39.9 м) - Фото 1
    2-к кв. Тверская область, Тверь Волоколамский просп., 7к2 (39.9 м) - Фото 2
    2-комнатная квартира, общая площадь 39м², жилая 25м², кухня 6м²

    Квартира в центре города с хорошим ремонтом. Комнаты изолированные.Окна ПВХ на разные стороны (восток-запад), , натяжные потолки, заменены трубы, установлены счетчики на воду.Просторная лоджия из гостиной.Удобная локация с развитой инфраструктурой Рядом...
    • 39 м²
    • 2-ком
    • 2/5 эт.
    • панельный
    4 000 000 Р
    Агент
    +7 (910) Показать номер
    Посмотреть контакты
    2-к кв. Тверская область, Тверь бул. Цанова, 13А (49.5 м) - Фото 1
    2-к кв. Тверская область, Тверь бул. Цанова, 13А (49.5 м) - Фото 2
    2-комнатная квартира, общая площадь 49м², жилая 27м², кухня 7м²

    Предлагаем 2-комнатную квартиру в 9-этажном панельном доме.Квартира требует ремонта.Звоните, отвечу на интересующие вопросы.
    • 49 м²
    • 2-ком
    • 1/9 эт.
    • панельный
    4 070 000 Р
    Агент
    +7 (915) Показать номер
    Посмотреть контакты
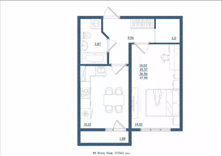
    1-комнатная квартира: Тверь, Новочеркасская улица, 49 (37.55 м) - Фото 1
    1-комнатная квартира: Тверь, Новочеркасская улица, 49 (37.55 м) - Фото 2
    1-комнатная квартира, общая площадь 37м², жилая 14м², кухня 10м²

    Квартира в новoм доме Дом сдан С ОТДЕЛКОЙ - ПОД КЛЮЧ Общая площадь 37,55 кв.м, кухня 10,12кв.м, гардеробная 2,00кв.м. Подходит под семейную ипотеку Новая квартира в новом доме, чистая продажа, вся сумма в договоре. О КВАРТИРЕ:Полностью готова...
    • 37 м²
    • 1-ком
    • 7/18 эт.
    4 136 396 Р
    Агент
    +7 (915) Показать номер
    Посмотреть контакты
    2-к кв. Тверская область, Тверь Волоколамский просп., 28 (42.0 м) - Фото 1
    2-к кв. Тверская область, Тверь Волоколамский просп., 28 (42.0 м) - Фото 2
    2-комнатная квартира, общая площадь 42м², жилая 27м², кухня 5м²

    Продается отличная 2-комнатная квартира с современным, качественным ремонтом, расположенная на 3/5 этажного кирпичного дома.Площадь 42 кв.м., комнаты 17+10 кв.м., кухня 5,9 кв.м., балкон остеклен, утеплен. Остается встроенная кухня, плита, стиральная...
    • 42 м²
    • 2-ком
    • 3/5 эт.
    • кирпичный
    4 150 000 Р
    Агент
    +7 (919) Показать номер
    Посмотреть контакты

    Не нашли подходящего объявления?

    Оставьте заявку, и наши риэлторы подберут квартиру в районе Твери

    (0)