4 450 000 Р 57 810 $ или 49 500

Информация о квартире

43 м2
Площадь
5 м2
Кухня
2
Комнаты
1
Этаж
5
Этажность

Дополнительная информация

Тип дома
панельный
Развернуть
Агент
+7 (980) 640-90-43
Начать чат с агентом

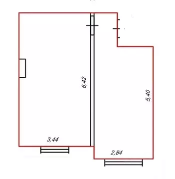
2-к кв. Тверская область, Тверь ул. Фадеева, 38к2 (43.9 м)

Двухкомнатная квартира на первом этаже в пятиэтажном доме предлагает выгодное и комфортное решение для жизни. Объект отличается продуманной планировкой: изолированные комнаты расположены по разным сторонам дома, что обеспечивает хорошую инсоляцию и сквозное проветривание, при этом квартира не является угловой, что гарантирует сохранение тепла в холодный период. Помещение передается с качественным свежим ремонтом, полностью готовым к заселению без дополнительных вложений. В стоимость включена практически вся функциональная мебель и бытовая техника, что минимизирует ваши хлопоты при переезде. Ключевым преимуществом является локация: в шаговой доступности находятся детские сады 114 и 118, а также школы 133 и 139. Остановка общественного транспорта и разнообразные магазины повседневного спроса обеспечивают высокий уровень бытовой инфраструктуры и отличную транспортную доступность района. Код пользователя: 87158Номер в базе:

Читать полностью

    Для того, чтобы купить двухкомнатную квартиру по адресу: Тверь, Московский, ул. Фадеева, 38к2, позвоните по телефону +7 (980) 640-90-43. Торопитесь! Объявление №30092042149 о продаже двухкомнатной квартиры опубликовано 28 ноября 2025.

    Позвонить Написать
    4 450 000 Р57 810 $ или 49 500
    Агент
    +7 (980) 640-90-43
    Начать чат с агентом
    Похожие предложения
    1-к кв. Тверская область, Тверь бул. Гусева, 62 (35.9 м) - Фото 1
    1-к кв. Тверская область, Тверь бул. Гусева, 62 (35.9 м) - Фото 2
    1-комнатная квартира, общая площадь 35м², кухня 8м²

    Продается уникальная однокомнатная квартира по адресу: Бульвар Гусева, д. 62 Это идеальное предложение для тех, кто мечтает о комфортабельном жилье в современном районе.Квартира расположена на 2 этаже 10-этажного кирпичного дома с индивидуальным отоплением,...
    • 35 м²
    • 1-ком
    • 2/10 эт.
    4 600 000 Р
    Агент
    +7 (910) Показать номер
    Посмотреть контакты
    3-к кв. Тверская область, Тверь ул. Можайского, 53 (66.7 м) - Фото 1
    3-к кв. Тверская область, Тверь ул. Можайского, 53 (66.7 м) - Фото 2
    3-комнатная квартира, общая площадь 66м², жилая 39м², кухня 6м²

    Продается трехкомнатная квартира общей площадью 66,7 кв.м на первом этаже в девятиэтажном кирпичном доме. Планировка функциональная и классическая, с изолированными комнатами, что обеспечивает комфортное проживание для семьи. Квартира находится в состоянии,...
    • 66 м²
    • 3-ком
    • 1/9 эт.
    • панельный
    4 550 000 Р
    Агент
    +7 (910) Показать номер
    Посмотреть контакты
    1-к кв. Тверская область, Тверь ул. Левитана, 93А (37.7 м) - Фото 1
    1-к кв. Тверская область, Тверь ул. Левитана, 93А (37.7 м) - Фото 2
    1-комнатная квартира, общая площадь 37м², жилая 13м², кухня 11м²

    Хотите купить квартиру, с удобной планировкой в недавно сданном доме? Ремонт у соседей сделан - перфоратор слушать не будете Это лучшее предложение по цене и качеству. Продаю 1 к квартиру с евроремонтом. Декоративная штукатурка на стенах, ламинат на...
    • 37 м²
    • 1-ком
    • 11/15 эт.
    • панельный
    4 462 408 Р
    Агент
    +7 (910) Показать номер
    Посмотреть контакты
    1-к кв. Тверская область, Тверь ул. Левитана, 93А (37.0 м) - Фото 1
    1-к кв. Тверская область, Тверь ул. Левитана, 93А (37.0 м) - Фото 2
    1-комнатная квартира, общая площадь 37м², жилая 11м², кухня 18м²

    Хотите купить квартиру, с удобной планировкой в недавно сданном доме? Ремонт у соседей сделан - перфоратор слушать не будете Это лучшее предложение по цене и качеству. Продаю 1 к квартиру с евроремонтом, с большой кухней-гостиной и спальней. Декоративная...
    • 37 м²
    • 1-ком
    • 7/15 эт.
    • панельный
    4 413 629 Р
    Агент
    +7 (910) Показать номер
    Посмотреть контакты
    1-к кв. Тверская область, Тверь ул. Левитана, 74Б (40.91 м) - Фото 1
    1-к кв. Тверская область, Тверь ул. Левитана, 74Б (40.91 м) - Фото 2
    1-комнатная квартира, общая площадь 40м², жилая 13м², кухня 14м²

    Продаю 1 комнатную квартиру, с удобной планировкой, в монолитно-кирпичном доме с индивидуальным газовым отоплением. Квартира продается без отделки ( свобода выбора отделки ). Толстые межквартирные стены и шумоизоляция обеспечат тишину в квартире. Стяжки...
    • 40 м²
    • 1-ком
    • 6/16 эт.
    4 499 690 Р
    Агент
    +7 (910) Показать номер
    Посмотреть контакты

    Не нашли подходящего объявления?

    Оставьте заявку, и наши риэлторы подберут квартиру в районе Твери

    (0)