Реализация объекта недвижимости приостановлена

Информация о квартире

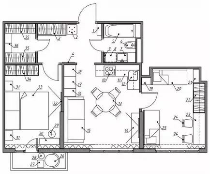
84.0 м2
Площадь
9.0 м2
Кухня
3
Комнаты
5
Этаж
6
Этажность

Дополнительная информация

Тип дома
кирпичный
Развернуть

3-к кв. Тверская область, Тверь Краснофлотская наб., 17 (84.6 м)

Трехкомнатная квартира в центре города Твери. Тихий закрытый ухоженный двор, детская площадка, подземный паркинг, автономное отопление, видеонаблюдение, низкие коммунальные платежи. Дом находится в самом центре города, в озелененном районе, рядом река Волга, городские парки и скверы, спортивный стадион, ледовый дворец, школы, детские сады, магазины. Общая площадь квартиры 81,1 кв. м., комнаты 13,5 м.кв.,18,4 кв.м, кухня 9,4, гостиная 16,2 кв.м, один совмещенный санузел 5,5 м.кв., прихожая 8,6 кв.м., гардеробная комната 3,3 кв.м. В доме очень чистые подъезды и ухоженная территория, собственное тсж.Квартира продается с мебелью и техникой. Код пользователя: 188402Номер в базе: 9713419

Читать полностью

    Реализация объекта недвижимости приостановлена

    Не нашли подходящего объявления?

    Оставьте заявку, и наши риэлторы подберут квартиру в районе Твери

    (0)