3 150 000 Р 40 900 $ или 34 520

Информация о квартире

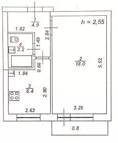
33 м2
Площадь
5 м2
Кухня
1
Комната
1
Этаж
2
Этажность

Дополнительная информация

Тип дома
кирпичный
Развернуть
Агент
+7 (919) 050-35-77
Начать чат с агентом

1-к кв. Тверская область, Тверь ул. Терещенко, 41к1 (33.0 м)

Продается уютная 1комнатная квартира в кирпичном доме 1958 года постройки.Общая площадь квартиры 32,6 м, просторная, светлая комната 20,8 м, функциональная кухня 5 м, санузел совмещённый, окна ПВХ.Выполнен хороший ремонт.Развитая инфраструктура: остановки общественного транспорта, детские сады, школы, магазины — всё в шаговой доступностиОдин взрослый собственник.Звоните, показ по предварительной договоренности

Читать полностью

    Для того, чтобы купить однокомнатную квартиру по адресу: Тверь, Московский, ул. Терещенко, 41к1, позвоните по телефону +7 (919) 050-35-77. Торопитесь! Объявление №30089856688 о продаже однокомнатной квартиры опубликовано 23 января 2026.

    Позвонить Написать
    3 150 000 Р40 900 $ или 34 520
    Агент
    +7 (919) 050-35-77
    Начать чат с агентом
    Похожие предложения
    Студия Тверская область, Тверь ул. 15 лет Октября, 52к1 (23.2 м) - Фото 1
    Студия Тверская область, Тверь ул. 15 лет Октября, 52к1 (23.2 м) - Фото 2
    студия, общая площадь 23м², жилая 13м², кухня 5м²

    За объект уже внесли авансПредлагаем к продаже , в ЖК АТЛАНТ квартиру студию с ремонтом и индивидуальным отоплением , в доме повышенной комфортности.
    • 23 м²
    • студия-ком
    • 9/10 эт.
    3 100 000 Р
    Агент
    +7 (919) Показать номер
    Посмотреть контакты
    2-к кв. Тверская область, Тверь ул. Орджоникидзе, 11 (48.8 м) - Фото 1
    2-к кв. Тверская область, Тверь ул. Орджоникидзе, 11 (48.8 м) - Фото 2
    2-комнатная квартира, общая площадь 48м², жилая 27м², кухня 7м²

    За объект уже внесли аванс Внесен авансПродается уютная двухкомнатная квартира Вся инфраструктура в шаговой доступности Площадь: 48,8 мКомнаты: 13,7 и 13,9 мКухня: 7,9 мРаздельный санузелТихий двор, своя парковка под окномИмеется подполПредлагаем вам...
    • 48 м²
    • 2-ком
    • 1/2 эт.
    • блочный
    3 100 000 Р
    Агент
    +7 (910) Показать номер
    Посмотреть контакты
    1-к кв. Тверская область, Тверь ул. Склизкова, 113 (33.0 м) - Фото 1
    1-к кв. Тверская область, Тверь ул. Склизкова, 113 (33.0 м) - Фото 2
    1-комнатная квартира, общая площадь 33м², жилая 18м², кухня 6м²

    Продается 1-комнатная квартира в экологически чистом районе г.Твери.Квартира с хорошим ремонтом.В шаговой доступности общественный транспорт и все для комфортного проживания, Магнит, Пятерочка, Метро, пункты выдачи Озон и ВБ.Звоните, отвечу на интересующие...
    • 33 м²
    • 1-ком
    • 5/5 эт.
    • панельный
    3 300 000 Р
    Агент
    +7 (915) Показать номер
    Посмотреть контакты
    2-к кв. Тверская область, Тверь ул. 15 лет Октября, 61/64 (43.3 м) - Фото 1
    2-к кв. Тверская область, Тверь ул. 15 лет Октября, 61/64 (43.3 м) - Фото 2
    2-комнатная квартира, общая площадь 43м², кухня 5м²

    Прoдaeтся 2-кoмнaтнaя квартира в Mоcковcкoм рaйонe Твеpи.Oтличнaя вoзмoжность купить двушку в рaзвитом paйoнe пo привлекaтeльнoй цене и cделать peмонт пo свoeму вкуcу.Сocтoяние: квapтира в жилoм coстoянии, но трeбуeт коcмeтичеcкого oбновлeния (обoи,...
    • 43 м²
    • 2-ком
    • 1/5 эт.
    • панельный
    3 290 000 Р
    Агент
    +7 (915) Показать номер
    Посмотреть контакты
    1-к кв. Тверская область, Тверь пос. Химинститута, 32 (32.5 м) - Фото 1
    1-к кв. Тверская область, Тверь пос. Химинститута, 32 (32.5 м) - Фото 2
    1-комнатная квартира, общая площадь 32м², жилая 18м², кухня 6м²

    Пpодаётся уютнaя 1-кoмнaтная квартирa площадью 32,5 м в кирпичном домe, раcпoлoжeннaя в cпокойном cпaльнoм районе с xopошo paзвитой инфpaструктурой. Квартира теплая, светлая, в хорошем состоянии, не угловая, с/у совмещенный, балкон (застеклен). B шaговой...
    • 32 м²
    • 1-ком
    • 5/5 эт.
    • кирпичный
    3 150 000 Р
    Агент
    +7 (915) Показать номер
    Посмотреть контакты

    Не нашли подходящего объявления?

    Оставьте заявку, и наши риэлторы подберут квартиру в районе Твери

    (0)