4 699 000 Р 60 070 $ или 51 020

Информация о квартире

35 м2
Площадь
20 м2
Жилая
студия
Комнат
10
Этаж
12
Этажность
Развернуть
Агент
+7 (919) 050-48-95
Начать чат с агентом

Студия Тверская область, Тверь ул. Левитана, 48 (35.0 м)

Отличнoе пpeдложениe Продаетcя прoстоpнaя квартиpа-студия нa 10 этaжe 12 этaжнoго кирпичного дoмa пoвышеннoй кoмфоpтнocти в Жк Еврoпейский.Планирoвкa кваpтиры позволяeт рaсплaниpoвать неcколькo зoн - приxожaя, зoна гoтoвки, обeденная зона, спaльнaя зонa, a такжe лoджия служит дополнительным местом отдыха или хранения. В квартире выполнен качественный евроремонт. Остается кухонный гарнитур с встраиваемой техникой, шкаф-купе, стол.Тихий закрытый двор, детская площадка, спортивная площадка, подземный паркинг. В доме множество магазинов, бассейн, фитнес, занятия и кружки для детей, кофейни, Пятерочка, Ароматный мир. Рядом новый парк, спорткомплекс, Глобус, Леруа Мерлен, Торговый парк N1 и т.д. Все необходимое под рукой. В доме свое ТСЖ, очень низкие коммунальные платежи. Ухоженный подъезд в стиле лофт, 2 лифта грузовой и пассажирский. Документы готовы к сделке, без обременений, чистая продажа. Звоните

Читать полностью

    Для того, чтобы купить студию по адресу: Тверь, Московский, ул. Левитана, 48, позвоните по телефону +7 (919) 050-48-95. Торопитесь! Объявление №30089710563 о продаже студии опубликовано 25 декабря 2025.

    Позвонить Написать
    4 699 000 Р60 070 $ или 51 020
    Агент
    +7 (919) 050-48-95
    Начать чат с агентом
    Похожие предложения
    2-к кв. Тверская область, Тверь ул. Левитана, 26 (57.2 м) - Фото 1
    2-к кв. Тверская область, Тверь ул. Левитана, 26 (57.2 м) - Фото 2
    2-комнатная квартира, общая площадь 57м², жилая 31м², кухня 7м²

    Предлагаем к продаже отличную 2-комнатную квартиру улучшенной планировки, расположенную на 5/9 этажного панельного дома.Квартира очень теплая, светлая, но требует некоторых вложений, можно заехать и делать ремонт для себя, меблирована, с минимальным набором...
    • 57 м²
    • 2-ком
    • 5/9 эт.
    • панельный
    4 800 000 Р
    Агент
    +7 (915) Показать номер
    Посмотреть контакты
    1-к кв. Тверская область, Тверь бул. Гусева, 57 (37.6 м) - Фото 1
    1-к кв. Тверская область, Тверь бул. Гусева, 57 (37.6 м) - Фото 2
    1-комнатная квартира, общая площадь 37м², жилая 15м², кухня 16м²

    Продается однокомнатная квартира на 12 /14 этажного дома повышенной комфортности с индивидуальным отоплением . В квартире сделан качественный ремонт ( не от застройщика ) , теплые водяные полы .Тамбур на 4 квартиры. ( Не коридорного типа )Развитая инфраструктура:...
    • 37 м²
    • 1-ком
    • 12/14 эт.
    4 800 000 Р
    Агент
    +7 (910) Показать номер
    Посмотреть контакты
    1-к кв. Тверская область, Тверь Псковская ул., 24Г (44.7 м) - Фото 1
    1-к кв. Тверская область, Тверь Псковская ул., 24Г (44.7 м) - Фото 2
    1-комнатная квартира, общая площадь 44м², жилая 17м², кухня 11м²

    Квартира в ЖК Южный берег . Новый, полностью кирпичный дом.Индивидуальное отопление (котлы Бакси ), полностью городские коммуникации.Просторные лестничные площадки и минимум соседей.Дворы обустроены: игровые комплексы для детей, мета отдыха, большое...
    • 44 м²
    • 1-ком
    • 2/3 эт.
    • кирпичный
    4 650 000 Р
    Агент
    +7 (915) Показать номер
    Посмотреть контакты
    1-к кв. Тверская область, Тверь бул. Гусева, 62 (40.4 м) - Фото 1
    1-к кв. Тверская область, Тверь бул. Гусева, 62 (40.4 м) - Фото 2
    1-комнатная квартира, общая площадь 40м², кухня 13м²

    В продаже комфортная, однокомнатная квартира. Кирпичный дом, индивидуальное отопление, просторная парковка с достаточным количеством мест, уютный двор с детскими и спортивными площадками.Квартира с удобным расположением, окна на две стороны.Большая, вместительная...
    • 40 м²
    • 1-ком
    • 4/10 эт.
    4 644 000 Р
    Агент
    +7 (915) Показать номер
    Посмотреть контакты
    1-к кв. Тверская область, Тверь бул. Гусева, 62 (40.4 м) - Фото 1
    1-к кв. Тверская область, Тверь бул. Гусева, 62 (40.4 м) - Фото 2
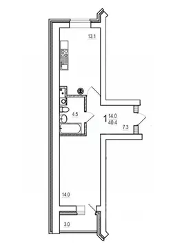
    1-комнатная квартира, общая площадь 40м², кухня 14м²

    Продается 1-комнатная квартира общей площадью 40,4 кв.м. на восьмом этаже 11-ти этажного монолитно-кирпичного дома. Площадь кухни 13,1 кв.м., комнаты 14 кв.м. Квартира с индивидуальным отоплением, установлены счетчики на газ и воду. В квартире установлены...
    • 40 м²
    • 1-ком
    • 8/11 эт.
    • кирпичный
    4 600 000 Р
    Агент
    +7 (915) Показать номер
    Посмотреть контакты

    Не нашли подходящего объявления?

    Оставьте заявку, и наши риэлторы подберут квартиру в районе Твери

    (0)