7 001 000 Р 86 030 $ или 74 670

Информация о квартире

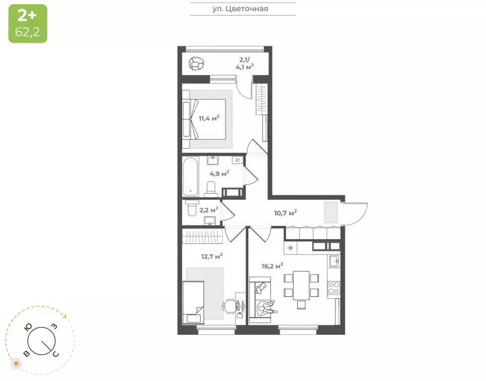
57 м2
Площадь
2
Комнаты
14
Этаж
17
Этажность
Развернуть
Агент
+7 (800) 333-03-43
Начать чат с агентом

2-к кв. Тверская область, Тверь Соминка мкр, (57.4 м)

Продаётся 2-комнатная квартира в строящемся доме (Дом 2), срок сдачи: IV-кв. 2026, общей площадью 57.4 кв.м., на 14 этаже. Будущий жилой квартал - это уникальный для Твери проект, обеспеченный всем необходимым для жизни: благоустроенный двор без автомобилей, детские площадки для разных возрастов, зоны для спорта, продуманные планировки квартир. На территории комплекса появится новая школа на 1224 мест и центральный бульвар. Квартал расположен в Заволжском районе на пересечении улиц 2-я Красина и Цветочная. В месте, где транспортными магистралями связаны сразу пять микрорайонов в Заволжье: ближнее Заволжье, Соминка, Радужный, МЖК и Юность. Что обеспечивает жителям квартала удобную транспортную доступность. Кампус ТвГУДетский сад 5Городская клиническая поликлиника 7Фитнес-клубМагазины продуктов питанияПочтовое отделение 10Бассейн Парус Напротив квартала планируется строительство школы на на 1224 местаДома расположены так, чтобы у жителей создавалось ощущение уюта и безопасного пространства. Все, что нужно для спокойного и тихого отдыха, находится во дворе, а подход к магазинам, парикмахерским, салонам услуг - с внешней стороны квартала. Двор внутри квартала принадлжеит только жителям, в нем нет случайных прохожих и проезжающих автомобилей. Мы выбрали проект, который предполагает, что дома в квартале будут разной высоты - от 9 до 25 этажей. Это позволяет избежать монотонности в застройке, а кроме того, благодаря чередованию высоких и низких секций во дворе больше солнца.

Читать полностью
    Позвонить Написать
    7 001 000 Р86 030 $ или 74 670
    Агент
    +7 (800) 333-03-43
    Начать чат с агентом
    Похожие предложения в Твери
    2-к кв. Тверская область, Тверь Соминка мкр,  (60.2 м) - Фото 1
    2-к кв. Тверская область, Тверь Соминка мкр,  (60.2 м) - Фото 2
    2-комнатная квартира, общая площадь 60м²

    Продаётся 2-комнатная квартира в строящемся доме (Дом 2), срок сдачи: IV-кв. 2026, общей площадью 60.2 кв.м., на 2 этаже. Будущий жилой квартал - это уникальный для Твери проект, обеспеченный всем необходимым для жизни: благоустроенный двор без автомобилей,...
    • 60 м²
    • 2-ком
    • 2/17 эт.
    7 038 500 Р
    Агент
    +7 (800) Показать номер
    Посмотреть контакты
    2-к кв. Тверская область, Тверь Соминка мкр,  (60.2 м) - Фото 1
    2-к кв. Тверская область, Тверь Соминка мкр,  (60.2 м) - Фото 2
    2-комнатная квартира, общая площадь 60м²

    Продаётся 2-комнатная квартира в строящемся доме (Дом 2), срок сдачи: IV-кв. 2026, общей площадью 60.2 кв.м., на 4 этаже. Будущий жилой квартал - это уникальный для Твери проект, обеспеченный всем необходимым для жизни: благоустроенный двор без автомобилей,...
    • 60 м²
    • 2-ком
    • 4/17 эт.
    7 068 300 Р
    Агент
    +7 (800) Показать номер
    Посмотреть контакты
    2-к кв. Тверская область, Тверь Соминка мкр,  (60.2 м) - Фото 1
    2-к кв. Тверская область, Тверь Соминка мкр,  (60.2 м) - Фото 2
    2-комнатная квартира, общая площадь 60м²

    Продаётся 2-комнатная квартира в строящемся доме (Дом 2), срок сдачи: IV-кв. 2026, общей площадью 60.2 кв.м., на 6 этаже. Будущий жилой квартал - это уникальный для Твери проект, обеспеченный всем необходимым для жизни: благоустроенный двор без автомобилей,...
    • 60 м²
    • 2-ком
    • 6/17 эт.
    7 086 200 Р
    Агент
    +7 (800) Показать номер
    Посмотреть контакты
    2-к кв. Тверская область, Тверь Соминка мкр,  (60.2 м) - Фото 1
    2-к кв. Тверская область, Тверь Соминка мкр,  (60.2 м) - Фото 2
    2-комнатная квартира, общая площадь 60м²

    Продаётся 2-комнатная квартира в строящемся доме (Дом 2), срок сдачи: IV-кв. 2026, общей площадью 60.2 кв.м., на 10 этаже. Будущий жилой квартал - это уникальный для Твери проект, обеспеченный всем необходимым для жизни: благоустроенный двор без автомобилей,...
    • 60 м²
    • 2-ком
    • 10/17 эт.
    7 092 200 Р
    Агент
    +7 (800) Показать номер
    Посмотреть контакты
    2-к кв. Тверская область, Тверь Соминка мкр,  (57.4 м) - Фото 1
    2-к кв. Тверская область, Тверь Соминка мкр,  (57.4 м) - Фото 2
    2-комнатная квартира, общая площадь 57м²

    Продаётся 2-комнатная квартира в строящемся доме (Дом 2), срок сдачи: IV-кв. 2026, общей площадью 57.4 кв.м., на 13 этаже. Будущий жилой квартал - это уникальный для Твери проект, обеспеченный всем необходимым для жизни: благоустроенный двор без автомобилей,...
    • 57 м²
    • 2-ком
    • 13/17 эт.
    6 972 600 Р
    Агент
    +7 (800) Показать номер
    Посмотреть контакты

    Не нашли подходящего объявления?

    Оставьте заявку, и наши риэлторы подберут квартиру в новостройке в районе Твери

    (0)