6 263 160 Р 75 820 $ или 64 660

Информация о квартире

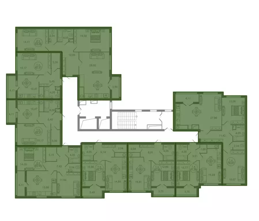
62 м2
Площадь
25 м2
Жилая
12 м2
Кухня
2
Комнаты
10
Этаж
16
Этажность
Развернуть
Агент
Иллидиум (застройщик)
+7 (994) 265-18-78
Начать чат с агентом

2-к кв. Тверская область, Тверь Бурашевское ш., 60 (62.32 м)

Квартиры в ЖК Атмосфера — идеальное сочетание комфорта, стиля и инфраструктуры Продаются квартиры в новом кирпично-монолитном доме с индивидуальным газовым отоплением, увеличенными окнами и современными планировками. Уже в продаже О доме:— 15-этажный дом, 4 секции— Увеличенные окна — больше света и ощущение простора— Остекленные лоджии— Индивидуальное отопление — минимальные коммунальные платежи, возможность сделать теплый— Быстрые и бесшумные лифты— Холлы с дизайнерским ремонтом— Закрытая территория — безопасность и уединение— Коммерческие помещения на первом этаже: магазины, салоны красоты, уютные кафе прямо у дома Двор и благоустройство:— Детские и спортивные площадки— Искусственный водоём и озеленённые аллеи для прогулок— Современное освещение и ландшафтный дизайн— Комфортная среда для жизни и отдыхаИнфраструктура:— Рядом всё необходимое: гипермаркеты, аптеки, поликлиники— 3 школы и 3 детских сада в пешей доступности— Удобный выезд и транспортная доступность — остановки рядом, маршруты в любой район города Условия покупки:— Ипотека от ведущих банков— Использование материнского капитала— Рассрочка — первый взнос от 10 — TRADE-IN — меняем вашу старую квартиру на новую— Сделка через эскроу-счета — 100 юридическая защита— Работаем ежедневно, покажем в любое удобное для вас времяОтделка White Box подготовка под чистовой ремонт (7 500 /м)Отделка под ключ - останется только поставить мебель (от 17 900 /м) Звоните прямо сейчас, чтобы выбрать свою квартиру в Атмосфере — пока лучшие планировки ещё в наличии

Читать полностью
    Позвонить Написать
    6 263 160 Р75 820 $ или 64 660
    Агент
    Иллидиум (застройщик)
    +7 (994) 265-18-78
    Начать чат с агентом
    Похожие предложения в Твери
    2-к кв. Тверская область, Тверь Бурашевское ш., 60 (63.65 м) - Фото 1
    2-к кв. Тверская область, Тверь Бурашевское ш., 60 (63.65 м) - Фото 2
    2-комнатная квартира, общая площадь 63м², жилая 26м², кухня 15м²

    Квартиры в ЖК Атмосфера — идеальное сочетание комфорта, стиля и инфраструктуры Продаются квартиры в новом кирпично-монолитном доме с индивидуальным газовым отоплением, увеличенными окнами и современными планировками. Уже в продаже О доме:— 15-этажный...
    • 63 м²
    • 2-ком
    • 13/16 эт.
    6 396 825 Р
    Агент
    +7 (994) Показать номер
    Посмотреть контакты
    2-к кв. Тверская область, Тверь Бурашевское ш., 60 (62.76 м) - Фото 1
    2-к кв. Тверская область, Тверь Бурашевское ш., 60 (62.76 м) - Фото 2
    2-комнатная квартира, общая площадь 62м², жилая 25м², кухня 13м²

    Квартиры в ЖК Атмосфера — идеальное сочетание комфорта, стиля и инфраструктуры Продаются квартиры в новом кирпично-монолитном доме с индивидуальным газовым отоплением, увеличенными окнами и современными планировками. Уже в продаже О доме:— 15-этажный...
    • 62 м²
    • 2-ком
    • 9/16 эт.
    6 307 380 Р
    Агент
    +7 (994) Показать номер
    Посмотреть контакты
    2-к кв. Тверская область, Тверь Бурашевское ш., 60 (59.75 м) - Фото 1
    2-к кв. Тверская область, Тверь Бурашевское ш., 60 (59.75 м) - Фото 2
    2-комнатная квартира, общая площадь 59м², жилая 27м², кухня 11м²

    Квартиры в ЖК Атмосфера — идеальное сочетание комфорта, стиля и инфраструктуры Продаются квартиры в новом кирпично-монолитном доме с индивидуальным газовым отоплением, увеличенными окнами и современными планировками. Уже в продаже О доме:— 15-этажный...
    • 59 м²
    • 2-ком
    • 8/16 эт.
    6 214 000 Р
    Агент
    +7 (994) Показать номер
    Посмотреть контакты
    2-к кв. Тверская область, Тверь Бурашевское ш., 60 (62.76 м) - Фото 1
    2-к кв. Тверская область, Тверь Бурашевское ш., 60 (62.76 м) - Фото 2
    2-комнатная квартира, общая площадь 62м², жилая 25м², кухня 13м²

    Квартиры в ЖК Атмосфера — идеальное сочетание комфорта, стиля и инфраструктуры Продаются квартиры в новом кирпично-монолитном доме с индивидуальным газовым отоплением, увеличенными окнами и современными планировками. Уже в продаже О доме:— 15-этажный...
    • 62 м²
    • 2-ком
    • 4/16 эт.
    6 307 380 Р
    Агент
    +7 (994) Показать номер
    Посмотреть контакты
    2-к кв. Тверская область, Тверь Бурашевское ш., 60 (63.65 м) - Фото 1
    2-к кв. Тверская область, Тверь Бурашевское ш., 60 (63.65 м) - Фото 2
    2-комнатная квартира, общая площадь 63м², жилая 26м², кухня 15м²

    Квартиры в ЖК Атмосфера — идеальное сочетание комфорта, стиля и инфраструктуры Продаются квартиры в новом кирпично-монолитном доме с индивидуальным газовым отоплением, увеличенными окнами и современными планировками. Уже в продаже О доме:— 15-этажный...
    • 63 м²
    • 2-ком
    • 16/16 эт.
    6 396 825 Р
    Агент
    +7 (994) Показать номер
    Посмотреть контакты

    Не нашли подходящего объявления?

    Оставьте заявку, и наши риэлторы подберут квартиру в новостройке в районе Твери

    (0)