Реализация объекта недвижимости приостановлена

Информация о коттедже

135.0 м2
Площадь
2
Этажность
5.0 cоток
Участок

Дополнительная информация

Дом продаётся вместе с участком
есть
Развернуть

Коттедж в Тверская область, Тверь проезд 2-й Транспортный, 29 (135 м)

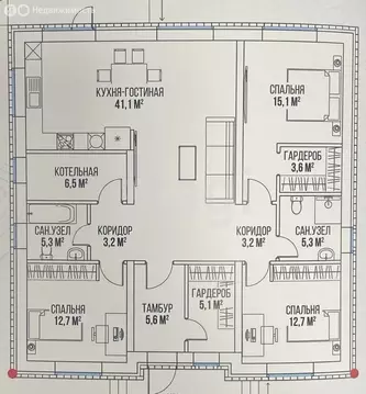
Читайте внимательно Коттедж находится на начальной стадии строительства (получаем разрешение на строительство и технические условия). Строительство начнется весной 2025 года. Проект можно менять. Для просмотра участка смотрите на метку на карте. На фото представлен ранее реализованный аналогичный проект на ул.Соревнования.Месторасположение: Коттедж находится в Московском районе на 2-м Транспортном проезде. Тихая и в тоже время развитая часть города (южное кольцо), рядом есть все необходимое остановки школы детские сады Глобус в шаговой доступности.Земельный участок площадью 5,7 соток. Панорамные окна кухни студии выходят на задний участок - зеленая зона отдыха.Срок реализации проекта: 4 месяца теплый контру и 4-5 месяцев подключение коммуникаций - более подробно уточняйте по телефону.Гибкая система оплаты:Обмен вашей недвижимостиЗачет вторичного жилья по рыночной стоимости (не дожидаясь момента продажи)Рассрочка платежейВозможность получения скидкиКоммуникации:Канализация центральная или септик.Водопровод - центральный или скважина.Газовый котел 24 квт.Электричество 15 квт.С договорами и лицевыми счетами на все коммуникации.Планировка:Коттедж 2-этажный общей площадью 135 кв. м.1 этаж: котельная, кухня-студия, прихожая, санузел, коридор, спальня.2 этаж: три спальни, санузел, коридор.Конструктивные элементы: фундамент монолитная железобетонная плита, стены силикатный кирпич + утеплитель Пеноплекс + облицовочный кирпич. Лестница - бетонированная на металлокаркасе. Железобетонные перекрытия, кирпичные перегородки. Материал крыши - мягкая кровля.Смотрите раздел реализованные проекты на нашем сайте. Если объявление размещено это не значит что этим объектом никто не интересуется, звоните.

Читать полностью

    Реализация объекта недвижимости приостановлена

    Не нашли подходящего объявления?

    Оставьте заявку, и наши риэлторы подберут купить дом в районе Твери

    (0)