9 350 000 Р 118 300 $ или 101 700

Информация о коттедже

140 м2
Площадь
2
Этажность
6 cоток
Участок

Дополнительная информация

Дом продаётся вместе с участком
есть
Развернуть
Агент
+7 (919) 051-14-15
Начать чат с агентом

Коттедж в Тверская область, Тверь Русская ул., 1 (140 м)

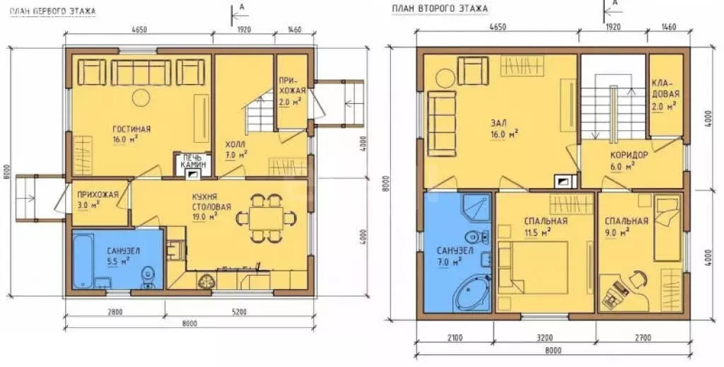
Продам 2-х этажный дом в ЧЕРТЕ ГОРОДА общей площадью 140 кв.м. на участке 6,5 сот. Адрес: г. Тверь, ул. Русская д.3Участок 6,5 сотки. Категория земель: ЗЕМЛИ НАСЕЛЕННЫХ ПУНКТОВ предназначенные ДЛЯ ИНДИВИДУАЛЬНОГО ЖИЛИЩНОГО СТРОИТЕЛЬСТВА.О ДОМЕ:Дом спроектирован по индивидуальному проекту.МАТЕРИАЛ СТЕН: газосиликатные блоки (400 мм), облицовка керамическим кирпичом (120 мм).ФУНДАМЕНТ: монолитная фундаментная плита.КРЫША : металлочерепица, подбой софиты, водосточная система1-й этаж: крыльцо (4,5 кв.м.), кладовая (3,42 кв.м), котельная (7.7 кв.м.), тамбур (3.96 кв.м.), комната (9.73 кв.м.), холл (9.62 кв.м.), с/у (3.86кв.м.), просторная кухня гостиная (32,51 кв.м.)ОБЩАЯ ПЛОЩАДЬ ПЕРВОГО ЭТАЖА 75.37 кв.м.2-й этаж: ТРИ комнаты (16.04, 16.04 и 14.97 кв.м.), холл (6.78 кв.м.), с/у (8.13 кв.м.), гардероб (3.88 кв.м.)ОБЩАЯ ПЛОЩАДЬ МАНСАРДНОГО ЭТАЖА 65.84 кв.м.ГАЗ введен в дом, установлен счетчик. Канализация септик. Электричество 15 кВт ввод в дом (щит).Вода колодец (ввод в дом). Установлены окна ПВХ, входная дверь.ОТЛИЧНЫЙ вариант для постоянного места жительства в черте города по приемлемым ценам Ипотека. Материнский капитал. Ключи в день сделки Возникнут вопросы, ЗВОНИТЕ Показ в любой день, в удобное для Вас время.Номер объекта: 1/537631/9903

Читать полностью

    Для того, чтобы купить 2-этажный коттедж по адресу: Тверь, Заволжский, ул. Русская, 1, позвоните по телефону +7 (919) 051-14-15. Торопитесь! Объявление №50016528508 о продаже двухэтажного коттеджа опубликовано Сегодня.

    Позвонить Написать
    9 350 000 Р118 300 $ или 101 700
    Агент
    +7 (919) 051-14-15
    Начать чат с агентом
    Похожие предложения
    Дом в Тверь, улица Семёнова (150 м) - Фото 1
    Дом в Тверь, улица Семёнова (150 м) - Фото 2
    2 этажа, общая площадь 150м², участок 3 сотки

    Продается двухэтажный дом 150 м2 на участке 6 соток(бревно + утеплитель). Дом газифицирован, оборудован газовым котлом и батареями отопления, горячая и холодная вода, туалет, душ в доме. Отопление, канализация центральное.На 1-ом этаже 2 комнаты и кухня...
    • 2 эт.
    • 150 м²
    • 3 сот.
    9 500 000 Р
    Агент
    +7 (960) Показать номер
    Посмотреть контакты
    Дом в Тверская область, Конаковский муниципальный округ, д. Пенье 58 ... - Фото 1
    Дом в Тверская область, Конаковский муниципальный округ, д. Пенье 58 ... - Фото 2
    2 этажа, общая площадь 106м², участок 15 соток

    id:9806. СЕЛЬСКАЯ ИПОТЕКА 3 Дом ИЖС в деревне Пенье, Конаковский районЖивописное экологически чистое место для ценителей природы и тишины. Дом для круглогодичного проживания, построен в 2024 году из пеноблоков. Строили для себя (не на продажу) из качественных...
    • 2 эт.
    • 106 м²
    • 15 сот.
    9 500 000 Р
    Агент
    +7 (915) Показать номер
    Посмотреть контакты
    Дом в Тверская область, Калининский муниципальный округ, д. Крупшево, ... - Фото 1
    Дом в Тверская область, Калининский муниципальный округ, д. Крупшево, ... - Фото 2
    1 этаж, общая площадь 114м², участок 10 соток

    Продам дом от застройщика в закрытом коттеджном поселке Счастье Возможны все формы оплаты, в том числе СЕМЕЙНАЯ ИПОТЕКА, рассрочка и трейд ин Характеристики и базовая комплектация дома:Планировка: кухня гостиная 39 м2, 3 комнаты по 14,6 м2, санузел...
    • 1 эт.
    • 114 м²
    • 10 сот.
    9 500 000 Р
    Агент
    +7 (910) Показать номер
    Посмотреть контакты
    Дом в Тверская область, Калининский муниципальный округ, Тихий Берег в ... - Фото 1
    Дом в Тверская область, Калининский муниципальный округ, Тихий Берег в ... - Фото 2
    1 этаж, общая площадь 100м², участок 7 соток

    В продаже новый каркасный дом площадью 100 м на участке 8 соток в деревне Поддубье Калининского района. Объект подходит для круглогодичного проживания благодаря продуманной конструкции и качественным материалам. Фундамент на железобетонных сваях обеспечивает...
    • 1 эт.
    • 100 м²
    • 7 сот.
    9 400 000 Р
    Агент
    +7 (980) Показать номер
    Посмотреть контакты
    Дом в Тверская область, Калининский муниципальный округ, пос. ... - Фото 1
    Дом в Тверская область, Калининский муниципальный округ, пос. ... - Фото 2
    2 этажа, общая площадь 144м², участок 9 соток

    Появилась возможность приобрести по сельской ипотеке Также действуют все остальные льготные виды ипотек нашего региона. Продается просторный дом с 4 комнатами на 2 этажах, общей площадью 144 квадратных метра. Это идеальный вариант для тех, кому важен...
    • 2 эт.
    • 144 м²
    • 9 сот.
    9 500 000 Р
    Агент
    +7 (915) Показать номер
    Посмотреть контакты

    Не нашли подходящего объявления?

    Оставьте заявку, и наши риэлторы подберут купить дом в районе Твери

    (0)