28 000 000 Р 365 800 $ или 307 900

Информация об помещении

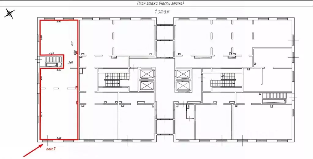
1
Этаж

Состояние и оснащение

Количество этажей
3
Развернуть
Агент
+7 (915) 730-87-25
Начать чат с агентом

Помещение свободного назначения в Тверская область, Конаково Торговый ...

id:9194. Коммерческая недвижимость - трехэтажное отдельностоящее здание в самом центре города Конаково общей площадью 247,7 кв.мАдрес: г. Конаково, Торговый проезд д. 3 бЗдание в отличном состоянии, построено в 2011 году из кирпича, фундамент - ж/б блоки ленточный, перекрытия - ж/б плиты, окна пластиковые; наружная отделка - штукатурка стен с окраской, облицовка искусственным камнем; внутренняя отделка - штукатурка стен с окраской, керамическая плитка; полы - плитка.Коммуникации:ЭлектричествоОтопление - газовый котелВодоснабжение и канализация- центральныеЗдание состоит из трех этажей:Цокольный этаж с двумя входами с разных сторон (отдельный вход с улицы и центральный вход первого этажа), торговый зал 43,7 кв.м, три отдельные комнаты и санузелПервый этаж - центральный вход с улицы, торговый зал - 61,4 кв.мВторой этаж - центральный вход с улицы, торговый зал - 78,8 кв.мЗдание находится в самом центре города на центральной улице с оживленным трафиком, с двух сторон дорога с парковочными местами и пешеходные дороги, рядом торговый центр, торговые ряды.Прекрасное место для торгово-развлекательного центра, бизнес-центра, салона красоты или ресторана

Читать полностью
    Позвонить Написать
    28 000 000 Р365 800 $ или 307 900
    Агент
    +7 (915) 730-87-25
    Начать чат с агентом
    Похожие предложения
    ПРОДАЕТСЯ КОММЕРЧЕСКОЕ ПОМЕЩЕНИЕ 53.1 КВ.М. С АРЕНДАТОРОМ - Фото 1
    ПРОДАЕТСЯ КОММЕРЧЕСКОЕ ПОМЕЩЕНИЕ 53.1 КВ.М. С АРЕНДАТОРОМ - Фото 2
    ПРОДАЕТСЯ КОММЕРЧЕСКОЕ ПОМЕЩЕНИЕ 53.1 КВ.М. С АРЕНДАТОРОМ - Фото 3
    ПРОДАЕТСЯ КОММЕРЧЕСКОЕ ПОМЕЩЕНИЕ 53.1 КВ.М. С АРЕНДАТОРОМ - Фото 4
    ПРОДАЕТСЯ КОММЕРЧЕСКОЕ ПОМЕЩЕНИЕ 53.1 КВ.М. С АРЕНДАТОРОМ - Фото 5
    ПРОДАЕТСЯ КОММЕРЧЕСКОЕ ПОМЕЩЕНИЕ 53.1 КВ.М. С АРЕНДАТОРОМ - Фото 6
    ПРОДАЕТСЯ КОММЕРЧЕСКОЕ ПОМЕЩЕНИЕ 53.1 КВ.М. С АРЕНДАТОРОМ - Фото 7
    ПРОДАЕТСЯ КОММЕРЧЕСКОЕ ПОМЕЩЕНИЕ 53.1 КВ.М. С АРЕНДАТОРОМ - Фото 8
    ПРОДАЕТСЯ КОММЕРЧЕСКОЕ ПОМЕЩЕНИЕ 53.1 КВ.М. С АРЕНДАТОРОМ - Фото 9
    ПРОДАЕТСЯ КОММЕРЧЕСКОЕ ПОМЕЩЕНИЕ 53.1 КВ.М. С АРЕНДАТОРОМ - Фото 10
    ПРОДАЕТСЯ КОММЕРЧЕСКОЕ ПОМЕЩЕНИЕ 53.1 КВ.М. С АРЕНДАТОРОМ - Фото 11
    ПРОДАЕТСЯ КОММЕРЧЕСКОЕ ПОМЕЩЕНИЕ 53.1 КВ.М. С АРЕНДАТОРОМ - Фото 12
    ПРОДАЕТСЯ КОММЕРЧЕСКОЕ ПОМЕЩЕНИЕ 53.1 КВ.М. С АРЕНДАТОРОМ - Фото 13
    полезная площадь 53.1м²

    ПРОДАЕТСЯ КОММЕРЧЕСКОЕ ПОМЕЩЕНИЕ 53.1 М С АРЕНДАТОРОМ Москва, Лётная ул., д. 95Бк2. Высокие потолки 5.5 м | Панорамное остекление | Готовая аренда 130 000 /мес | 8 мин до метро! ИДЕАЛЬНОЕ МЕСТО ДЛЯ БИЗНЕСА В ПЕРСПЕКТИВНОМ РАЙОНЕ Преимущества...
    • 53.1 м²
    • 1/26 эт.
    27 000 000 Р
    PRO
    +7 (929) Показать номер
    Посмотреть контакты
    Продажа ПСН, м. Октябрьская, ул. Якиманка Б. - Фото 1
    Продажа ПСН, м. Октябрьская, ул. Якиманка Б. - Фото 2
    Продажа ПСН, м. Октябрьская, ул. Якиманка Б. - Фото 3
    Продажа ПСН, м. Октябрьская, ул. Якиманка Б. - Фото 4
    Продажа ПСН, м. Октябрьская, ул. Якиманка Б. - Фото 5
    Продажа ПСН, м. Октябрьская, ул. Якиманка Б. - Фото 6
    Продажа ПСН, м. Октябрьская, ул. Якиманка Б. - Фото 7
    Продажа ПСН, м. Октябрьская, ул. Якиманка Б. - Фото 8
    общая площадь 35.5м², полезная площадь 35.5м²

    От собственника - арендный бизнес. ПСН общей площадью 35,5 м2, находится на ул.Большая Якиманка, ЦАО, район Якиманка. 1-я фасадная линия домов, в 4-х минутах пешком от метро Октябрьская. Сверхинтенсивный пешеходный и автомобильный трафик, респектабельное...
    • 35.5 м²
    • 1-й эт.
    27 750 000 Р
    Агент
    +7 (903) Показать номер
    Посмотреть контакты
    Продажа ПСН, м. Дубровка, ул. Машиностроения 2-я - Фото 1
    Продажа ПСН, м. Дубровка, ул. Машиностроения 2-я - Фото 2
    Продажа ПСН, м. Дубровка, ул. Машиностроения 2-я - Фото 3
    Продажа ПСН, м. Дубровка, ул. Машиностроения 2-я - Фото 4
    Продажа ПСН, м. Дубровка, ул. Машиностроения 2-я - Фото 5
    Продажа ПСН, м. Дубровка, ул. Машиностроения 2-я - Фото 6
    Продажа ПСН, м. Дубровка, ул. Машиностроения 2-я - Фото 7
    Продажа ПСН, м. Дубровка, ул. Машиностроения 2-я - Фото 8
    Продажа ПСН, м. Дубровка, ул. Машиностроения 2-я - Фото 9
    Продажа ПСН, м. Дубровка, ул. Машиностроения 2-я - Фото 10
    Продажа ПСН, м. Дубровка, ул. Машиностроения 2-я - Фото 11
    Продажа ПСН, м. Дубровка, ул. Машиностроения 2-я - Фото 12
    Продажа ПСН, м. Дубровка, ул. Машиностроения 2-я - Фото 13
    Продажа ПСН, м. Дубровка, ул. Машиностроения 2-я - Фото 14
    общая площадь 111.8м², полезная площадь 111.8м²

    ОТ СОБСТВЕННИКА. Продажа помещения (ПСН) в административном 6-ти этажном здании в ЮВАО, Южнопортовый район. Площадь помещения 111,8 м2. Помещение расположено на 5-м этаже, на этаж ведут 2 лестницы и 2 лифта. Высота потолков 3,4 м. Планировка свободная,...
    • 111.8 м²
    • 5-й эт.
    27 950 000 Р
    Агент
    +7 (903) Показать номер
    Посмотреть контакты
    Продажа ПСН, м. Воронцовская, Старокалужское ш. - Фото 1
    Продажа ПСН, м. Воронцовская, Старокалужское ш. - Фото 2
    Продажа ПСН, м. Воронцовская, Старокалужское ш. - Фото 3
    Продажа ПСН, м. Воронцовская, Старокалужское ш. - Фото 4
    Продажа ПСН, м. Воронцовская, Старокалужское ш. - Фото 5
    Продажа ПСН, м. Воронцовская, Старокалужское ш. - Фото 6
    Продажа ПСН, м. Воронцовская, Старокалужское ш. - Фото 7
    общая площадь 103.5м², полезная площадь 103.5м²

    От собственника. Помещение свободного назначения (ПСН) расположено на 1-м этаже в БЦ в районе Коньково (ЮЗАО), в 30 метрах от метро Воронцовская. Площадь помещения 103,5 м2 (блок на плане 5). Помещение светлое и просторное, с большими панорамными окнами....
    • 103.5 м²
    • 1-й эт.
    28 980 000 Р
    Агент
    +7 (903) Показать номер
    Посмотреть контакты
    Продажа ПСН, м. Водный стадион, ул. Смольная - Фото 1
    Продажа ПСН, м. Водный стадион, ул. Смольная - Фото 2
    Продажа ПСН, м. Водный стадион, ул. Смольная - Фото 3
    Продажа ПСН, м. Водный стадион, ул. Смольная - Фото 4
    Продажа ПСН, м. Водный стадион, ул. Смольная - Фото 5
    Продажа ПСН, м. Водный стадион, ул. Смольная - Фото 6
    общая площадь 80.2м², полезная площадь 80.2м²

    Предлагается к покупке помещение общей площадью 80,9 кв.м (№ 10 на плане), расположенное на 2-м этаже БЦ "Smola" по адресу: ул. Смольная, д. 2. Высота потолков 3,3 м, открытая планировка, панорамное остекление. Бизнес- центр расположен в зоне общественно-жилой...
    • 80.2 м²
    • 2-й эт.
    27 000 000 Р
    Агент
    +7 (903) Показать номер
    Посмотреть контакты

    Не нашли подходящего объявления?

    Оставьте заявку, и наши риэлторы подберут псн в районе Конаково

    (0)