11 000 000 Р 140 600 $ или 119 400

Информация об помещении

1
Этаж

Состояние и оснащение

Количество этажей
2
Развернуть
Агент
+7 (915) 700-31-45
Начать чат с агентом

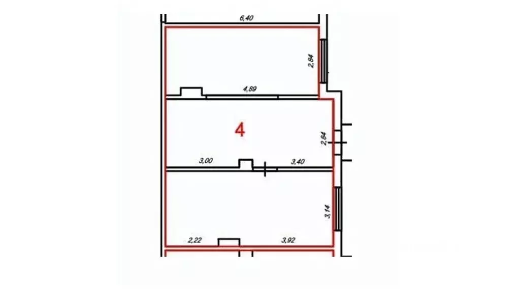
Помещение свободного назначения в Тверская область, Кимры ул. 50 лет ...

Уникальное предложение Кимры , ул. 50 лет влксм дом 20. Помещение свободного назначения, состоящее : цокольный этаж ( приравнен к 1 этажу) площадь: 78.1кв. м., 260.8 кв.м. Кадастровые номера: 69:42:0070940:63, 69:42:0070940:222. Земля в собственности 4 сотки ( парковка ) - 69:42:0070940:44. Единственное помещение в городе в новостройке Не требует ремонта Стоят индивидуальные приборы учета водоснабжения / электроэнергии . Помещение сухое, теплое.На 1 этаже арендатор сетевой магазин ( склад диванов) . Остальные помещения в аренде.По всем дополнительным вопросам и информации звонить по указанному номеру.

Читать полностью
    Позвонить Написать
    11 000 000 Р140 600 $ или 119 400
    Агент
    +7 (915) 700-31-45
    Начать чат с агентом
    Похожие предложения
    Помещение свободного назначения в Тверская область, Нелидово ... - Фото 1
    Помещение свободного назначения в Тверская область, Нелидово ... - Фото 2
    Объект 541120. Предлагаем к покупке инвестиционный проект со сроком реализации 6-12 месяцев.ОПИСАНИЕ ОБЪЕКТА:Торговое помещение площадью 243,5 кв.м. + земельный участок в собственности площадью 632 кв.м. (вид разрешенного использования земли - для эксплуатации...
    • 1/1 эт.
    10 900 000 Р
    Агент
    +7 (910) Показать номер
    Посмотреть контакты
    Помещение свободного назначения в Тверская область, Тверь Московская ... - Фото 1
    Помещение свободного назначения в Тверская область, Тверь Московская ... - Фото 2
    Адрес: г. Тверь, ул. Московская, дом 63 (Московский район).Продажа помещения свободного назначения общей площадью 90 кв.м.Помещение расположено на ПЕРВОМ ЭТАЖЕ кирпичного жилого дома 2014 г/п.ОТДЕЛЬНАЯ ВХОДНАЯ ГРУППА. ПОМЕЩЕНИЕ МОЖНО ПЕРЕВЕСТИ В ЖИЛОЕ...
    • 1/16 эт.
    10 300 000 Р
    Агент
    +7 (910) Показать номер
    Посмотреть контакты
    Помещение свободного назначения в Тверская область, Конаковский ... - Фото 1
    Помещение свободного назначения в Тверская область, Конаковский ... - Фото 2
    Продам складское помещение площадью 304 кв.м на участке 6,5 соток (ИЖС) в д. Вахромеево у дороги на территории загородного коттеджного посёлка Ольгино.Помещение 2024 года, построено по каркасно-щитовой технологии (утеплитель: пол 150, стены 150, потолок...
    • 1/1 эт.
    10 200 000 Р
    Агент
    +7 (915) Показать номер
    Посмотреть контакты
    Помещение свободного назначения в Тверская область, Тверь ул. Паши ... - Фото 1
    Помещение свободного назначения в Тверская область, Тверь ул. Паши ... - Фото 2
    Внимание тц*ПАРУС* на ул.П.Савельевой д 21 к 1.Продам помещение 180м2 на втором этаже в тц*ПАРУС*.Два входа и один отдельный прямо с остановки О.Т.Витринные окна. Свой с,у. Однообъемное помещение с перегородками.Большая стоянка.Есть стабильный арендатор....
    • 2/2 эт.
    10 500 000 Р
    Агент
    +7 (910) Показать номер
    Посмотреть контакты
    Помещение свободного назначения в Кемеровская область, Новокузнецк ул. ... - Фото 1
    Помещение свободного назначения в Кемеровская область, Новокузнецк ул. ... - Фото 2
    ОАО РЖД предлагает к продаже нежилое здание общей площадью 486,8 кв. м в городе Новокузнецке. Одноэтажное кирпичное здание 1964 года постройки. Состояние объекта удовлетворительное, ремонт не требуется. Инженерные коммуникации: отопление, водоснабжение,...
    • 1/1 эт.
    10 046 800 Р
    Агент
    +7 (933) Показать номер
    Посмотреть контакты

    Не нашли подходящего объявления?

    Оставьте заявку, и наши риэлторы подберут псн в районе Кимр

    (0)