4 850 000 Р 67 950 $ или 57 950

Информация о квартире

62 м2
Площадь
45 м2
Жилая
5 м2
Кухня
3
Комнаты
5
Этаж
5
Этажность

Дополнительная информация

Тип дома
панельный
Развернуть
Агент
+7 (915) 700-31-45
Начать чат с агентом

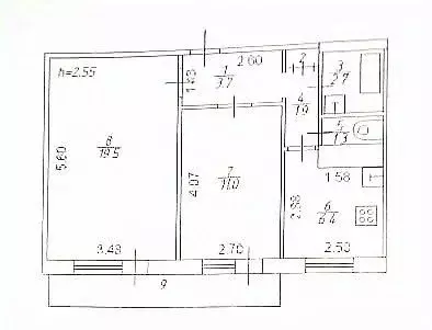
3-к кв. Тверская область, Кимры ул. Кириллова, 17 (62.0 м)

Продажа вторички 3 - комнатная квартира, общей площадью 62 кв.м. Комнаты раздельные ( улучшенная планировка). Жилая площадь: 45.3 кв.м, кухня - 5.9 кв.м. косметический ремонт. , окна выходят во двор и на улицу.В квартире:аздельный санузел, трубы поменяны, счетчики. 1 балконКвартира находится на 5 этаже 5-этажного дома.Дом панельный. Балкон застеклен , утеплен.Район Новое Савелово. Развитая инфраструктура Все рядом: школа-гимназия 2, садики, супермаркеты, автобусные остановки во все части города и на Дубну, ж/д вокзал 5 мин ходьбы, набережная реки Волга.

Читать полностью

    Для того, чтобы купить трехкомнатную квартиру по адресу: Кимры, ул. Кириллова, 17, позвоните по телефону +7 (915) 700-31-45. Торопитесь! Объявление №30093493286 о продаже трехкомнатной квартиры опубликовано 2 дня назад.

    Позвонить Написать
    4 850 000 Р67 950 $ или 57 950
    Агент
    +7 (915) 700-31-45
    Начать чат с агентом
    Похожие предложения
    2-к кв. Тверская область, Кимры Коммунистическая ул., 16 (42.2 м) - Фото 1
    2-к кв. Тверская область, Кимры Коммунистическая ул., 16 (42.2 м) - Фото 2
    2-комнатная квартира, общая площадь 42м², жилая 28м², кухня 5м²

    Продается 2-х к.квартира, расположенная на 4/5 эт. кирпичного дома, общей площадью: 42.2 м.кв. Адрес: город Кимры, ул. Коммунистическая, дом 16. Квартира не угловая, комнаты проходные, перепланировок не было, санузел совмещенный, год постройки дома 1963....
    • 42 м²
    • 2-ком
    • 4/5 эт.
    • кирпичный
    4 900 000 Р
    Агент
    +7 (915) Показать номер
    Посмотреть контакты
    2-комнатная квартира: Кимры, Коммунистическая улица, 16 (42.2 м) - Фото 1
    2-комнатная квартира: Кимры, Коммунистическая улица, 16 (42.2 м) - Фото 2
    2-комнатная квартира, общая площадь 42м², жилая 28м², кухня 5м²

    Продается 2-х к.квартира, расположенная на 4/5 эт. кирпичного дома, общей площадью: 42.2 м.кв. Адрес: город Кимры, ул. Коммунистическая, дом 16. Квартира не угловая, комнаты проходные, перепланировок не было, санузел совмещенный, год постройки дома 1963....
    • 42 м²
    • 2-ком
    • 4/5 эт.
    4 900 000 Р
    Агент
    +7 (960) Показать номер
    Посмотреть контакты
    3-к кв. Тверская область, Кимры ул. Чапаева, 10 (49.4 м) - Фото 1
    3-к кв. Тверская область, Кимры ул. Чапаева, 10 (49.4 м) - Фото 2
    3-комнатная квартира, общая площадь 49м², жилая 34м², кухня 5м²

    г. Кимры, ул. Чапаева, д. 10 (Новое Савелово)3-х комнатная квартира, расположена на 2-ом этаже 5-ти этажного кирпичного дома, без балкона.Общая площадь 49,4 кв.м., жилая 34,2 кв.м. (комнаты смежно-изолированные 15,2-10,9-8,1), кухня 5,6 кв.м., прихожая...
    • 49 м²
    • 3-ком
    • 2/5 эт.
    • кирпичный
    4 800 000 Р
    Агент
    +7 (910) Показать номер
    Посмотреть контакты
    1-к кв. Тверская область, Тверь ул. С.Я. Лемешева, 6 (36.0 м) - Фото 1
    1-к кв. Тверская область, Тверь ул. С.Я. Лемешева, 6 (36.0 м) - Фото 2
    1-комнатная квартира, общая площадь 36м², жилая 20м², кухня 10м²

    Арт.Продается однокомнатная квартира в новом доме с большой кухней. Индивидуальное отопление. Развитая инфраструктура. Закрытый двор, своя детская площадка. Магазины, аптеки, остановка в шаговой доступности. Рядом бассейн Европейский . По всем интересующим...
    • 36 м²
    • 1-ком
    • 14/16 эт.
    • монолит
    4 800 000 Р
    Агент
    +7 (919) Показать номер
    Посмотреть контакты
    1-к кв. Тверская область, Калининский муниципальный округ, д. Батино ... - Фото 1
    1-к кв. Тверская область, Калининский муниципальный округ, д. Батино ... - Фото 2
    1-комнатная квартира, общая площадь 35м², жилая 14м², кухня 10м²

    Арт.В продаже однокомнатная квартира, расположенная на шестом этаже восемнадцатиэтажного дома.Подходит под СЕМЕЙНУЮ ИПОТЕКУ.Конструктив дома: МОНОЛИТ-КИРПИЧ, присутствует Архитектурная подсветка фасада.Общая площадь квартиры: 35 кв. м., площадь кухни...
    • 35 м²
    • 1-ком
    • 6/18 эт.
    • монолит
    4 900 000 Р
    Агент
    +7 (915) Показать номер
    Посмотреть контакты

    Не нашли подходящего объявления?

    Оставьте заявку, и наши риэлторы подберут квартиру в районе Кимр

    (0)