Реализация объекта недвижимости приостановлена

Информация о коттедже

109.0 м2
Площадь
1
Этажность
6.0 cоток
Участок

Дополнительная информация

Дом продаётся вместе с участком
есть
Развернуть

Дом в Тверская область, Калининский муниципальный округ, деревня ...

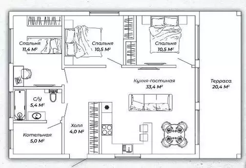
Продается новый, одноэтажный дом на участке 6 соток в д. Новенькое на берегу реки ТверцаОбщая площадь дома – 109,4 кв. метраДом 2023 года постройки. Дом достроен Все соответствует фотографиям Фундамент – монолитная плитаМатериал стен - газосиликатные блоки, утеплитель, облицовочный кирпичКрыша – металлочерепица + утеплитель 200 ммВ дом заведены все коммуникации (свет, газ, вода-скважина, канализация-биостанция) Сделана отмостка вокруг дома. Участоковной, правильной формы, вокруг обнесен забором с откатными воротами, на территории участка оборудовано парковочное место и дорожка к дому. В доме выровнены и отштукатурены стены, что упрощает работы по ремонту. Установлена входная дверь с терморазрывом.Практичная, удобная, просторная планировка с высокими потолками и панорамным остеклением:- прихожая/холл 20,2 кв. метра- комната 15,5 кв. метра- комната 12,9 кв. метра- комната 13 кв. метра - кухня-гостинная 34,5 кв. метра- с/у 7,5 кв. метраПрекрасное, уютное, тихое место, до реки Тверца 500 метров. Ходит общественный транспорт, остановка в шаговой доступности, в деревне есть магазин. Код пользователя: 49454Номер в базе:

Читать полностью

    Реализация объекта недвижимости приостановлена

    Не нашли подходящего объявления?

    Оставьте заявку, и наши риэлторы подберут купить дом в районе Калининского района

    (0)