27 500 000 Р 363 100 $ или 304 000

Информация о коттедже

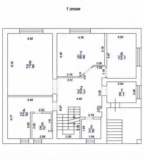
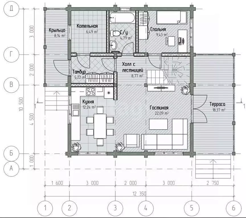
430 м2
Площадь
3
Этажность
9 cоток
Участок

Дополнительная информация

Дом продаётся вместе с участком
есть
Развернуть
Агент
+7 (910) 536-93-26
Начать чат с агентом

Коттедж в Тверская область, Калининский муниципальный округ, д. ...

Продается новый шикарный 3-этажный коттедж общей площадью 430 м кв. Коттедж находится в 10 км от Твери в деревне Новенькое, в живописном месте на первой береговой линии реки Тверца, рядом с сосновым бором.Дом построен в 2021 году. Все коммуникации присутствуют газ, электричество, скважина, канализация-септик.Внутренняя отделка выполнена из высококачественных современных строительных материалов. Вся мебель и техника в доме новая.1 этаж прихожая, холл 10,4 кв/м, гардеробная 9 кв/м, большая кухнягостиная 50 м кв., с/у 8,4 кв/м.2 этаж большой просторный холл 33 кв/м (зал для йоги или занятий танцами с зеркалом во всю стену) , 2 спальни 21.3+11.2, гостевая и детская игровая в 2 уровня, с/у, лаундж зона.На цокольном этаже находятся бойлерная, бильярдная, зал для спорта и отдыха.К дому пристроен отапливаемый гараж на 2 машины.Участок 9,2 сотки правильной квадратной формы, высокий, сухой. На участке расположены навес под 2 автомобиля, бревенчатая благоустроенная баня с кухонной и столовой зоной, кирпичная беседка с мангальной зоной и большая теплица, молодые плодово-ягодные деревья и кустарникиПодходит для проживания большой дружной семьи.Хорошая транспортная доступность от Твери, ходят маршрутки, на машине 16 минут езды до Речного вокзала. Продаем в связи с переездом.Рассмотрим все варианты покупки, обмен.

Читать полностью

    Для того, чтобы купить 3-этажный коттедж по адресу: Сибирская улица, позвоните по телефону +7 (910) 536-93-26. Торопитесь! Объявление №50015635729 о продаже трехэтажного коттеджа опубликовано 20 января 2026.

    Позвонить Написать
    27 500 000 Р363 100 $ или 304 000
    Агент
    +7 (910) 536-93-26
    Начать чат с агентом
    Похожие предложения
    Дом в Тверская область, Калининский муниципальный округ, д. Глазково ... - Фото 1
    Дом в Тверская область, Калининский муниципальный округ, д. Глазково ... - Фото 2
    3 этажа, общая площадь 290м², участок 14 соток

    Продается современный трёхэтажный жилой дом на первой линии реки Тверца в д. Глазково Расположение:Дом находится в живописной и экологически чистой зоне — всего в 50 метрах от берега реки Тверца, с собственным выходом к воде и пляжем.Адрес: Тверская область,...
    • 3 эт.
    • 290 м²
    • 14 сот.
    27 999 999 Р
    Агент
    +7 (910) Показать номер
    Посмотреть контакты
    Дом в Тверская область, Калининский муниципальный округ, д. Игнатово  ... - Фото 1
    Дом в Тверская область, Калининский муниципальный округ, д. Игнатово  ... - Фото 2
    2 этажа, общая площадь 163м², участок 15 соток

    Уютный дом в сердце природы: резиденция для ценителей экологии и комфорта Локация:Игнатово, Тверская область, Калининский район — идеальное место для тех, кто мечтает о гармонии с природой. Уединенная деревня, окруженная лесами и полями, предлагает тишину...
    • 2 эт.
    • 163 м²
    • 15 сот.
    27 000 000 Р
    Агент
    +7 (910) Показать номер
    Посмотреть контакты
    Коттедж в Тверская область, Калининский муниципальный округ, д. ... - Фото 1
    Коттедж в Тверская область, Калининский муниципальный округ, д. ... - Фото 2
    2 этажа, общая площадь 172м², участок 15 соток

    Вашему вниманию предлагается жилой двухэтажный коттедж, в одной из лучших деревень, с необыкновенно красивым названием Малиновка, в экологически чистом и живописном районе Завидовского Заповедника, знаменитым своим удивительным сосновым лесом и маленькой...
    • 2 эт.
    • 172 м²
    • 15 сот.
    28 000 000 Р
    Агент
    +7 (923) Показать номер
    Посмотреть контакты
    Дом в Тверская область, Калининский муниципальный округ, д. Глазково ... - Фото 1
    Дом в Тверская область, Калининский муниципальный округ, д. Глазково ... - Фото 2
    2 этажа, общая площадь 320м², участок 11 соток

    Код объекта: 1590060.Эксклюзивное предложение Готовый к проживанию, красивый и уютный коттедж в д. Глазково. Материал стен газосиликатные блоки + керамический кирпич. 2022 год постройки. Высокое качество строительства. Кровля металлочерепица. Два этажа....
    • 2 эт.
    • 320 м²
    • 11 сот.
    28 500 000 Р
    Агент
    +7 (980) Показать номер
    Посмотреть контакты
    Дом в Тверская область, Кимрский муниципальный округ, пос. Заводской  ... - Фото 1
    Дом в Тверская область, Кимрский муниципальный округ, пос. Заводской  ... - Фото 2
    общая площадь 70м², участок 78 соток

    Природный участок с домом в лесу предлагает уникальную возможность для жизни, где каждый день можно начинать и заканчивать на свежем воздухе, среди пения птиц и шелеста листьев. Это прямое соединение с природой способствует снижению стресса, улучшению...
    • 70 м²
    • 78 сот.
    28 989 000 Р
    Агент
    +7 (915) Показать номер
    Посмотреть контакты

    Не нашли подходящего объявления?

    Оставьте заявку, и наши риэлторы подберут купить дом в районе Калининского района

    (0)