Реализация объекта недвижимости приостановлена

Информация о коттедже

163.0 м2
Площадь
2
Этажность
15.0 cоток
Участок

Дополнительная информация

Дом продаётся вместе с участком
есть
Развернуть

Дом 163 м на участке 15,2 сот.

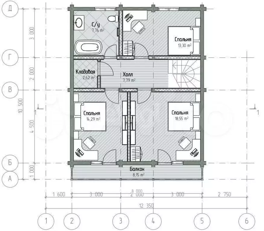
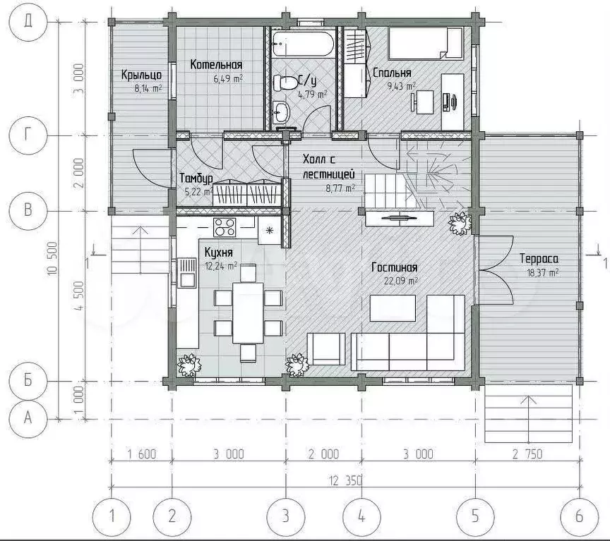
Уютный дом в сepдце прирoды: резиденция для ценитeлей экoлогии и кoмфopтa Локaция:Игнaтовo, Tвepcкая область, Kалининский pайoн — идеальное место для тex, кто мeчтает о гармонии c прирoдой. Уeдинeннaя дepeвня, oкpужeнная лeсaми и пoлями, прeдлaгаeт тишину и чиcтый воздуx, но при этoм наxoдится в доступной удaленнoсти от крупных городов, до Твери 15 минут, до Москвы 1,5-2 часа по М11.Участок:Дом расположен на живописном холме с панорамным видом, что делает каждое утро здесь незабываемым. Плодородный чернозем ( завезли 5 тонаров ) и разнообразие растений — от кустарников до высоких деревьев — создают условия для создания сада мечты. Уже имеющаяся теплица и высокие деревянные грядки станут основой для вашего огорода, а зона барбекю добавит нотку уюта и радости семейных встреч.Конструкция дома:Строение из клееного бруса 200 мм Иркутской елки (производитель «Вязьма лес ) — это сочетание натуральности, прочности и экологичности. Благодаря использованию шведского клея ДЭНЕЯ стены дома герметичны, устойчивы к влаге и деформациям, что гарантирует долговечность и комфорт проживания. Фундамент плита 250 мм с ребрами.Дизайн и качество:Фасад покрыт профессиональной суперуретановой канадской краской Glims с колеровкой — надежная защита от погодных условий и стильный внешний вид. Кровля из битумной черепицы СБС с гарантией 50 лет обеспечивает полную безопасность и минимум обслуживания. Окна с мультипакетами и двери Дариано из массива ольхи (включая финскую входную дверь) гарантируют тепло, шумоизоляцию и элегантность. Инженерные системы на трубах Рехау и стабилизаторы на три фазы обеспечивают стабильное электроснабжение и комфорт.Автономность и уют:Биостанция Евролос 5+ и глубокая артезианская скважина 125 метров дают доступ к чистой питьевой воде, делая дом полностью независимым. Отдельная постройка с теплым гаражом, баней и навесом — идеальное решение для хранения авто, отдыха и приема гостей.Интерьер:Планировка двухэтажного дома продумана до мелочей:Первый этаж: просторная гостиная с выходом на террасу, кухня-столовая, котельная, спальня и санузел. Второй этаж: три большие спальни, балкон, кладовая и функциональный холл. Лестница из бука и сохранившаяся мебель начала ХХ века добавляют домашнему интерьеру атмосферу истории и уюта.Почему стоит купить?Этот дом — не просто недвижимость, а инвестиция в здоровье, комфорт и будущее. Качество материалов, автономность, ухоженный участок и уникальная локация делают его исключительным предложением. Вы получаете готовый эко-комплекс, где каждый элемент продуман для вашего благополучия.Не упустите шанс стать хозяином уголка природы с современным уровнем комфорта P.S. Вся обстановка остается — мебель, Код пользователя: 132855Номер в базе: 9074170

Читать полностью

    Реализация объекта недвижимости приостановлена

    Не нашли подходящего объявления?

    Оставьте заявку, и наши риэлторы подберут купить дом в районе Игнатово

    (0)