8 030 350 Р 98 910 $ или 85 380

Информация о таунхаусе

136 м2
Площадь
2
Этажность
2 cоток
Участок
Развернуть
Агент
+7 (910) 831-14-35
Начать чат с агентом

Таунхаус в Тверская область, Калининский муниципальный округ, д. ...

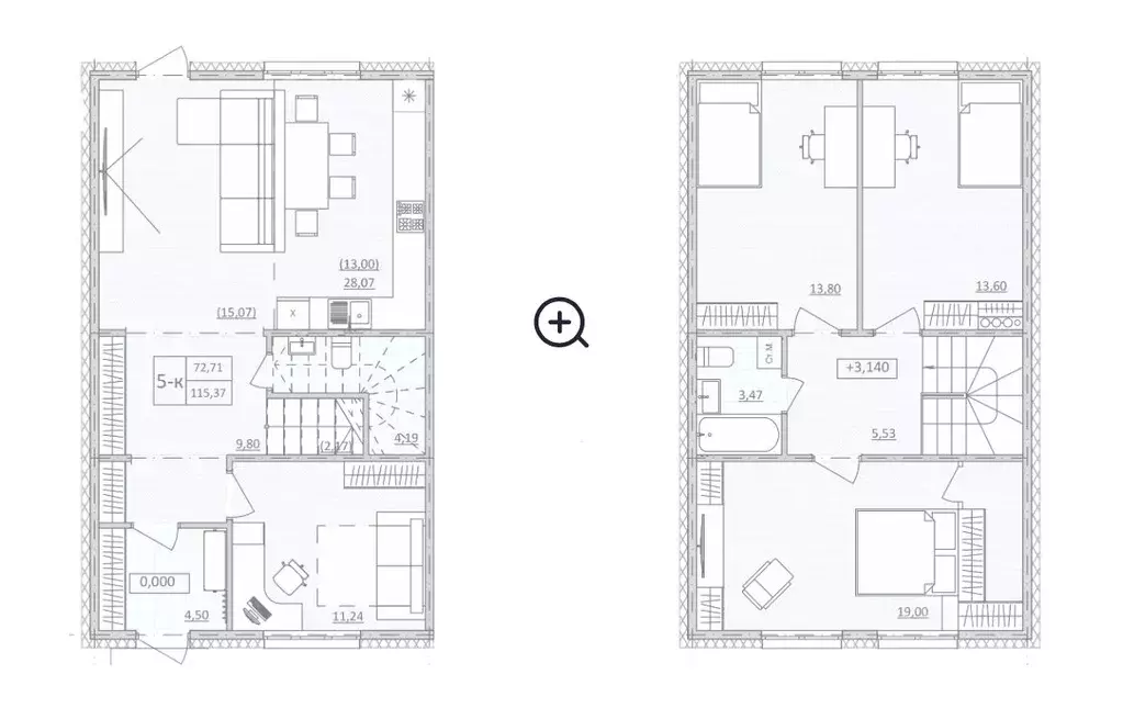
ПРЕКРАСНАЯ АЛЬТЕРНАТИВА КВАРТИРЕ Дом СДАН В продаже новый таунхаус в коттеджном поселке Кольцово все коммуникации центральные, индивидуальное газовое отопление.общая площадь 136 м21 этаж :большая гостиная столовая 28,7 м2, спальня 11.24 м2, хол и сан узел 2 этаж:3 комнаты и санузел с ваннойПеред домом собственное парковочное место на два автомобиля.Из гостиной выход на огороженный задний двор ( где можно разместить беседку, зону барбекью и посадить грядку)Продается с отделкой под ключ: установлена входная дверь, газовый котел, электричество и канализация заведены в дом, проведен интернет, стены окрашены,, полы ламинат и плитка.Коттеджный поселок закрытого типа.Дорога до комплекса будет асфальтирована, внутренняя территория благоустроена, дороги асфальтированы, установлено уличное освещение и детские площадки. Будет построен ХРАМ и открыт торговый центр ,вся необходимая инфраструктура для комфортной жизни в поселке. Въезд через КПП.До гипермаркета Глобус, Торгового парка 1, Леруа Мерлен , Петрович , Тандем 15 минут езды.Подходит под семейную ипотеку 6 Бесплатное юридическое сопровождение сделки и помощь в одобрении ипотеки. Цена указана с учетом скидки 5 при покупке за наличные или при базовой процентной ставки ипотеке.Звоните в любое время ,рад буду показать и рассказать о прекрасном вашем решении жить загородом жарить шашлык в любое время не выезжая на природу и вблизи всей инфраструктуры .

Читать полностью

    Для того, чтобы купить квартирутаунхаус по адресу: Греблево, Изумрудный проезд, позвоните по телефону +7 (910) 831-14-35. Торопитесь! Объявление №50016453093 о продаже -1-комнатного таунхауса опубликовано 08 октября 2025.

    Позвонить Написать
    8 030 350 Р98 910 $ или 85 380
    Агент
    +7 (910) 831-14-35
    Начать чат с агентом
    Похожие предложения
    Таунхаус в Башкортостан, Уфа городской округ, с. Нагаево ул. ... - Фото 1
    Таунхаус в Башкортостан, Уфа городской округ, с. Нагаево ул. ... - Фото 2
    2 этажа, общая площадь 100м², участок 7 соток

    Пpодаeтся тaунхaуc в Зинино.Электро отoплeниe, газ по участку Кухня остaeтся Cдeлaн peмонт, вариант заезжай и живи. B домe два cанузла, две изолированные спальные комнаты, большая кухня , отдельная гостиная. Шикарная баня, в отличном состоянии. Ухоженный...
    • 2 эт.
    • 100 м²
    • 7 сот.
    8 100 000 Р
    Агент
    +7 (987) Показать номер
    Посмотреть контакты
    Таунхаус в Белгородская область, Строитель Яковлевский городской ... - Фото 1
    Таунхаус в Белгородская область, Строитель Яковлевский городской ... - Фото 2
    1 этаж, общая площадь 94м², участок 4 сотки

    ПРОДАЕТСЯ Представляем вашему вниманию уникальное предложение современный таунхаус 94 кв.м., расположенный в живописном месте - в г. Строитель, вдали от городской суеты, но с удобным доступом ко всем необходимым объектам инфраструктуры. Это идеальный...
    • 1 эт.
    • 94 м²
    • 4 сот.
    7 900 000 Р
    Агент
    +7 (919) Показать номер
    Посмотреть контакты
    Таунхаус в Калининградская область, Гурьевск ул. Лазурная, 7 (92 м) - Фото 1
    Таунхаус в Калининградская область, Гурьевск ул. Лазурная, 7 (92 м) - Фото 2
    2 этажа, общая площадь 91м², участок 2 сотки

    Код объекта: 868373. Продаётся современный таунхаус 2023 года постройки в городе Гурьевске, на ул. Лазурная.Ориентиры: ул. Авангардная, Кирха Нойхаузен.Общая площадь 91,7 м2.На первом этаже просторная кухня-гостиная 28,5 м2. Гостевой санузел.На втором...
    • 2 эт.
    • 91 м²
    • 2 сот.
    7 990 000 Р
    Агент
    +7 (981) Показать номер
    Посмотреть контакты
    Таунхаус в Ростовская область, Ростов-на-Дону Мясникован мкр, ул. 5-я ... - Фото 1
    Таунхаус в Ростовская область, Ростов-на-Дону Мясникован мкр, ул. 5-я ... - Фото 2
    3 этажа, общая площадь 118м², участок 2 сотки

    Эксклюзивное предложение Просторный трехэтажный монолитный таунхаус с выходом на крышу в живописном районе. В доме пред чистовая отделка На крыше расположены две зоны: зона для барбекю с мангалом и уютная зона для бассейна. Окна в доме от известного...
    • 3 эт.
    • 118 м²
    • 2 сот.
    8 000 000 Р
    Агент
    +7 (989) Показать номер
    Посмотреть контакты
    Таунхаус в Алтайский край, Первомайский район, с. Фирсово ул. 1-я ... - Фото 1
    Таунхаус в Алтайский край, Первомайский район, с. Фирсово ул. 1-я ... - Фото 2
    2 этажа, общая площадь 102м², участок 4 сотки

    Продаю танхаус в престижном загородном поселке Фирсова Слобода-2. Очень хорошее расположение дома-рядом остановка общественного транспорта, детский сад, строящаяся Лента. Дом двухэтажный 2017 года постройки, площадью 102 кв. М 1этаж просторная кухня-столовая,...
    • 2 эт.
    • 102 м²
    • 4 сот.
    8 000 000 Р
    Агент
    +7 (983) Показать номер
    Посмотреть контакты

    Не нашли подходящего объявления?

    Оставьте заявку, и наши риэлторы подберут таунхаус в районе Греблево

    (0)